
9 建筑施工图
房屋是供人们生活、生产、工作、学习和娱乐的重要场所。房屋的建造一般需要经过设计和施工两个过程。设计人员根据用户提出的要求,按照国家房屋建筑制图统一标准,用正投影的方法,将拟建房屋的内外形状、大小,以及各部分的结构、构造、装修、设备等内容,详细而准确地绘制成的图样,称为房屋建筑图 。
9.1 概述
9.1.1 房屋的组成
建筑物按使用功能的不同可以分为工业建筑和民用建筑 两大类。民用建筑又可以分为公共建筑 (学校、医院、会堂等)和居住建筑(住宅、宿舍等)。建筑按结构分,通常有框架结构和承重墙结构等。各种建筑物尽管在功能及构造上各有不同,但就一幢房屋而言,基本上是由屋顶、墙(或柱)、楼(地)层、楼梯、基础和门窗等部分组成。图9-1是一幢房屋的立体图,图中较清楚地表明了房屋各部分的名称及所在位置。

图9-1 房屋的组成
屋顶,位于房屋最上部。其面层起维护作用,防雨雪风沙,隔热保温;其结构层起承重作用,承受屋顶重力及积雪和风荷载。墙或柱,是房屋主要的承重构件,房屋的外围起维护作用,内墙起分隔作用。楼(地)层,除了承受荷载之外还在竖直方向将建筑物分层。楼梯,是上下楼层之间垂直方向的交通设施。基础,是建筑物地面以下的部分,承受建筑物的全部荷载并将其传给地基。门窗,门是为了室内外的交通联系,窗则起通风、采光作用。
9.1.2 房屋建筑施工图的分类
房屋的设计一般分初步设计和施工图设计。初步设计是指根据有关设计原始资料提出方案。施工图设计是对设计方案进一步具体化、明确化,并绘制出正确、完整的用于指导施工的图样。房屋建筑施工图是将建筑物的平面布置、外形轮廓、尺寸大小、结构构造和材料做法等内容,按照“国标”规定,用正投影的方法,详细准确地画出的图样,又称为房屋施工图。房屋设计需要不同专业的设计人员共同合作来完成。房屋建筑施工图按其专业内容和作用的不同也分为不同的图样。
一套房屋建筑施工图一般包括:图样目录、施工总说明、建筑施工图、结构施工图和设备施工图。
建筑施工图简称建施 ,主要反映建筑物的整体布置、外部造型、内部布置、细部构造、内外装饰以及一些固定设备、施工要求等,是房屋施工放线、砌筑、安装门窗、室内外装修和编制施工概算及施工组织计划的主要依据。一套建筑施工图一般包括施工总说明、总平面图、建筑平面图、建筑立面图、建筑剖面图、建筑详图和门窗表等。
结构施工图简称结施 ,主要反映建筑物承重结构的布置、构件类型、材料、尺寸和构造做法等,是基础、柱、梁、板等承重构件以及其他受力构件施工的依据。结构施工图一般包括结构设计说明、基础图、结构平面布置图和各构件的结构详图等。
设备施工图 简称设施 ,主要反映建筑物的给水排水、采暖通风、电气等设备的布置和施工要求等。设备施工图一般包括各种设备的平面布置图、系统图和详图等。
9.1.3 绘制建筑施工图的有关规定
建筑施工图应按正投影原理及视图、剖面、断面等基本图示方法绘制,为了保证质量、提高效率、统一要求、便于识读,除应遵守《房屋建筑制图统一标准》(GB/T 50001—2010)中的基本规定外,还应遵守《建筑制图标准》(GB/T 50104—2010)。
1)图线
在建筑施工图中,为反映不同内容和层次分明,图线采用不同线型和线宽,具体见表9-1。
表9-1 建筑施工图中图线的选用

续表9-1

注:地平线宽可用1.4b。
2)比例
建筑物的形体较大,所以施工图一般都用较小的比例绘制。为了反映建筑物的细部构造及具体做法,常配以较大比例的详图,并用文字加以说明。施工图中常用比例参见表9-2所示。
表9-2 比例

3)定位轴线
在学习定位轴线的布置和画法之前,先简单介绍一下与之相关的建筑“模数 ”概念。所谓建筑“模数”是指房屋的跨度 (进深 )、柱距 (开间 )、层高等尺寸都必须是基本模数(1M=100mm)或扩大模数(3M、6M、15M、30M、60M)的倍数,这样便于规范化、生产标准化、施工机械化。
定位轴线是用来确定建筑物主要结构及构件位置的尺寸基准线,它是施工放线的主要依据。凡承重构件如墙、柱、梁、屋架等位置都要画上定位轴线并进行编号,施工时以此作为定位的基准。施工图上,定位轴线用细点画线绘制,在线的端部画一直径为8~10mm的细实线圆,圆内注写编号。在建筑平面图上定位轴线的编号,宜标注在图样的下方与左侧,横向编号应用阿拉伯数字,从左至右顺序编写;竖向编号应用大写拉丁字母,从下至上顺序编写,如图9-2(a)所示。字母中的I、O、Z不得用为轴线编号,以免与数字1、0、2混淆。在标注非承重墙或次要承重构件时,可用在两根轴线之间的附加轴线,附加轴线的编号如图9-2(b)、(c)所示。

图9-2 定位轴线及其编号
4)尺寸和标高注法
建筑施工图上的尺寸可分为定形尺寸、定位尺寸和总体尺寸。定形尺寸表示各部位构造的大小;定位尺寸 表示各部位构造之间的相互位置;总体尺寸应等于各分尺寸之和。尺寸除了总平面图及标高尺寸以米(m)为单位外,其余一律以毫米(mm)为单位。注写尺寸时应使长、宽尺寸与相邻的定位轴线相联系。
标高是标注建筑物高度的一种尺寸形式。标高是用以表明房屋各部分(如室内外地面、窗台、雨篷、檐口等)高度的标注方法。在图中用标高符号加注高程数字表示。标高符号用细实线绘制,符号中的三角形为等腰直角三角形,尖端所指为实际高度线。尖端可向下,也可向上。标高的尺寸单位为米,注写到小数点后3位(总平面图上可注写到小数点后2位)。涂黑的标高符号,用在总平面图及底层平面图表示室外地坪标高。标高符号及其画法见图9-3所示。

图9-3 标高符号及其画法
标高有绝对标高和相对标高 两种。我国是以青岛附近黄海海平面的平均高度定为绝对标高的基准零点,其他各地标高都是以它为基准测量而得的。总平面图中所标注标高为绝对标高。相对标高一般是以房屋底层室内地坪高度的绝对标高为基准零点。零点标高用±0.000表示,低于零点的标高为负数,负数标高数字前加注“-”号,如-0.060;高于零点的正数标高数字前不加“+”号,如3.500。

图9-4 建筑标高与结构标高
房屋的标高,还有建筑标高和结构标高的区别,如图9-4所示。建筑标高是指构件包括粉饰在内的装修完成后的标高,又称完成面标高。结构标高是指不包括构件表面的粉饰层厚度,是构件的毛面标高 。
5)索引符号和详图符号
在图样中的某一局部或构件未表达清楚,而需另见详图以得到更详细的尺寸及构造做法时,为方便施工时查阅图样,应以索引符号 索引。即在需要另画详图的部位编上索引符号,并在所画的详图上编上详图符号,两者必须对应,以便看图时查找相互有关的图纸。索引符号的圆和直径均以细实线绘制,圆的直径为10mm,索引符号的引出线应指在要索引的位置上,当引出的是剖面详图时,用粗实线表示剖切位置,引出线所在的一侧应为剖视方向,圆内的编号含义如图9-5(a)所示。详图符号应以粗实线绘制直径为14mm的圆,直径以细实线绘制,圆内的编号含义如图9-5(b)所示。

图9-5 索引符号和详图符号
6)指北针指北针 用于表示房屋的朝向,指针尖所指方向为北方。指北针的圆用细实线绘制,直径为24mm,指针尾部的宽度为3mm,如图9-6所示。需用较大直径绘制指北针时,指针尾部宽度宜为直径的1/8。
7)图名与比例
图名一般注写在图样下方居中的位置。图样的比例应为图形与实物相对应的线性尺寸之比。比例宜注写在图名的右侧,比例的字高应比图名的字高小1号或2号。图名下用粗实线绘制底线,底线应与字取平。如图9-7所示。

图9-6 指北针

图9-7 图名与比例
9.2 建筑总平面图
9.2.1 建筑总平面图的作用
建筑总平面图是新建房屋在基地范围内的总体布置图。将拟建工程四周一定范围内的新建、拟建、原有和拆除的建筑物、构筑物连同其周围的地形地物状况,用水平投影的方法和相应的图例所画出的图样,即为总平面图(或称总平面布置图)。它反映新建房屋与原有建筑的平面形状、位置、朝向以及与周围环境之间的关系。
建筑总平面图是新建房屋的施工定位、土方施工以及室内外水、暖、电等管线布置和施工总平面设计的重要依据。绘制建筑总平面图应遵守《总图制图标准》(GB/T 50103—2010)。
9.2.2 图示内容及画法要求
总平面图反映一定范围内原有、新建、拟建、即将拆除的建筑及其所处周围环境、地形地貌、道路绿化情况的水平投影图。
总平面图常用比例为1∶500、1∶1000、1∶2000。总平面图应按上北下南方向绘制,根据场地形状或布局,可向左或向右偏转,但不宜超过45°。
总平面图应包括以下内容:
(1)新建建筑物的名称、层数、室内外地坪标高、外形尺寸及与周围建筑物的相对位置。
(2)新建道路、广场、绿化、场地排水方向和设备管网的布置。
(3)原有建筑物的名称、层数以及与相邻新建建筑的相对位置。
(4)原有道路、绿化和管网布置情况。
(5)拟建的建筑、道路、广场、绿化的布置。
(6)新建建筑物的周围环境、地形(如等高线、河流、池塘、土坡等)、地物(如树木、电线杆、设备管井等)。
(7)指北针或风玫瑰图。
风玫瑰图(如图9-8)由当地气象部门提供,粗实线表示全年主导风向频率,细虚线表示6、7、8三个月的风向频率,并可兼作指北针。

图9-8 风玫瑰图
表9-3 总平面图中常用的图例

9.2.3 读图实例
图9-9是某小区的总平面图。绘图比例为1∶500。4幢住宅楼与综合楼组成一个建筑组团,该组团四面有路,由等高线可以看出该组团所在的地势为西北高,东南低。图中粗实线表示的轮廓是新建建筑物,右上角的小黑点(亦可用阿拉伯数字)表示建筑物的层数,其中住宅3#楼和4#楼为两幢新建建筑物,均为4层。图中涂黑的三角形为室外标高,它们分别标注了不同的高程。由左上角的风玫瑰图可以看出此处夏季以东南风为主,其余季节以西北风为主,该组团内房屋朝向正南。图中用细实线表示原有建筑物,东面的粗虚线表示为计划扩建的建筑物。

图9-9 总平面图
图中还画出了绿化图例和地形测量坐标。从总平面图可看出这是一个地势、朝向、交通、绿化环境都比较理想的位置。
9.3 建筑平面图
9.3.1 建筑平面图的形成和作用
建筑平面图 (除屋顶平面图以外)是房屋的水平剖面图,是假想用水平剖切面在门窗洞口处把整幢房屋剖开,移去上面部分后向水平面投影所得的全剖面图,一般称平面图。
建筑平面图主要表示房屋的平面形状、水平方向各部分的布置和组合关系、门窗的类型和位置、墙和柱的布置以及其他建筑构配件的位置和大小等。建筑平面图是施工放线、砌墙和安装门窗等的依据,是施工图中最基本的图样之一。
一般来说,房屋有几层就应画几个平面图,并在图的下方注明相应的图名和比例,如底层平面图、二层平面图等。但对于中间各层,如果布置完全相同,可将相同的楼层用一个平面图表示,称为标准层平面图。此外还有屋顶平面图(对于较简单的房屋可以不画),它是屋顶的水平正投影图。如房屋的平面布置左右对称时,可将两层平面画在一起,左边画出一层的一半,右边画出另一层的一半,中间用一对称符号做分界线,并在该图的下方分别注明图名。
9.3.2 建筑平面图的图示内容及画法要求
1)比例
建筑平面图一般多采用1∶50、1∶100、1∶200的比例绘制。
2)定位轴线
定位轴线的画法和编号已在本章第1节中详细介绍。建筑平面图中定位轴线的编号确定后,其他各种图样中的轴线编号应与之相符。
3)图线
为了表达清晰,建筑平面图中的图线应粗细有别、层次分明。一般被剖切到的墙柱轮廓线画粗实线(b),没有剖切到的可见轮廓线如窗台、台阶、楼梯等凸出部分及被剖切到的次要建筑物的轮廓线画中粗线(0.7b),尺寸线、尺寸界线、标高符号、索引符号、引出线等画中线(0.5b),图例填充线、轴线等画细线(0.25b)。如需反映高窗、通气孔、槽及起重机、地沟等不可见部位,可用虚线示之(在建筑设计中,常采用简易画法:剖切到主要轮廓线用粗线,其他用细线)。
4)尺寸标注
建筑平面图中标柱的尺寸有3类:标高、外部尺寸、内部尺寸。
建筑平面图中常以底层室内主要地坪(地面面层上表面)高度为相对标高的零点(标记为±0.000),高于此处的为“正”,低于此处的为“负”,负数标高数字前加注“-”号,高于零点的正数标高数字前不加“+”号,并于设计说明中说明相对标高与绝对标高之间的关系。
建筑平面图上的外部尺寸共有3道,由外至内,第一道表示建筑总长、总宽的外形尺寸,称为外包尺寸,用以表示建筑物的占地面积;第二道为墙柱中心轴线间的尺寸,即定位轴线之间的尺寸,用以表示房间的“进深”和“开间”;第三道,主要用来表示外门、窗洞口的宽度及窗间墙的大小,并应注明与其最近的轴线间的尺寸。
此外,建筑平面图中应注明建筑构配件的定形和定位尺寸,如墙、柱、内部门窗洞口、楼梯、踏步、平台、台阶、花坛等。
5)代号及图例
常用门窗在建筑设计中以表9-4所示的图例表示,并在平面图的图例旁注明门窗代号和编号,代号“M”表示门,“C”表示窗。同一编号的门窗,其类型、构造、尺寸都相同。门窗洞口的型式、大小及凸出的窗台等都按实际投影绘出。
表9-4 建筑常用门窗图例

续表9-4

注:该表中每个图例均为平、立剖图例,左侧为剖面图图例,右侧上方为立面图图例,右侧下方为平面图图例。
不同的建筑平面图,剖切面轮廓内的材料图例规定:若以1∶100、1∶200的比例绘制建筑平面图时不必画材料图例和构件的抹灰层,剖切到的砖墙用涂红表示,钢筋混凝土构件涂黑表示。在比例大于1∶50的平面图中,被剖切到的墙、柱等应画出材料图例,装修层也应用细实线画出。比例小于1∶200的平面图可不画材料图例。
6)建筑平面图的细部内容
建筑平面图中应以中实线(或细实线)画出投影时能够看到的室外花坛、散水、台阶、阳台、雨篷及室内的楼梯、壁橱、孔洞、厨卫间的固定设施等,见图9-10。这些构件虽小,却是建筑人性化需求的标志。

图9-10 建筑平面图中部分常用图例
7)投影要求
一般来说,各层平面图按投影方向能看到的部分均应画出,但通常是将重复之处省略,如散水、明沟、台阶等只在底层平面图中表示,而其他各层平面图则省略不画,雨篷也只在二层平面图中表示。必要时在平面图中还应画出卫生器具、水池、橱、隔断等。
8)其他标注
在平面图中宜注写房间的名称或编号,在底层平面图中应画出指北针,当平面图上某一部分或某一构件另有详图表示时需用索引符号在图上表明。此外,建筑剖面图的剖切符号也应在房屋的底层平面图上标注。
9)门窗表
为了便于订货和加工,建筑平面图中一般附有门、窗表。
10)局部平面图和详图
在平面图中,如果某些局部平面因设备或因内部组合复杂、比例较小而表达不清楚时,可画出较大比例的局部平面图或详图。
11)屋面平面图
屋面平面图是直接从房屋上方向下投影所得,由于内容比较简单,可以用较小的比例绘制,它主要表示屋面排水的情况(用箭头、坡度或泛水表示),以及天沟、雨水管、水箱等的位置。
9.3.3 读图实例
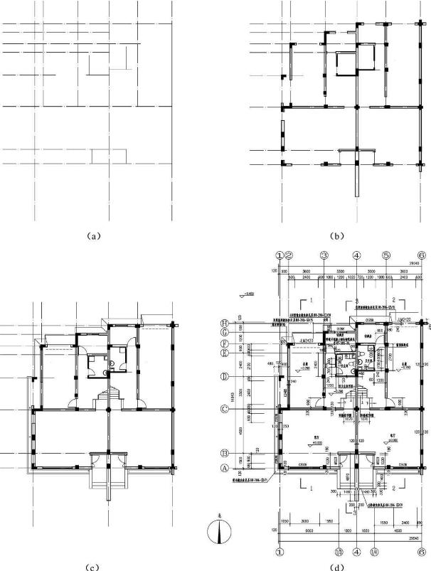
图9-11为某联排别墅1号楼(简称L-1)的一层平面图,是用1∶100比例绘制的。该联排别墅平面的形状基本为矩形,建筑面积为29.04m×14.94m。由图上指北针可知,该联排别墅坐北朝南,房屋的主入口位于房屋的南面,北侧为车库入口。该联排别墅为4户,左右对称布置。一层主要为功能区,它包含有车库、客厅、保姆房、卫生间等。由定位轴线、轴线间的距离以及墙柱的布置情况、各房间的名称可以看出各承重构件的位置及房间的功能与大小。该户型有朝南的大客厅和朝北的车库、保姆房、卫生间。
该联排别墅为框架结构,钢筋混凝土柱在比例较小时用涂黑表示,柱的断面形式有300mm×300mm、350mm×350mm、300×500的矩形断面,还有L形断面,以及十字断面多种形式,剖切到的墙用粗实线双线绘制,除注明外内外墙均为240mm,这里的墙起维护和分隔作用,外墙用砂加气混凝土砌块砌筑,内墙用灰加气混凝土砌块砌筑。
房屋的定位轴线是以柱的中心线位置确定的,横向轴线从①~
,纵向轴线从
~
。应注意墙与轴线的位置有两种情况:一种是墙中心线与轴线重合;另一种是墙面与轴线重合。图中除了主要轴线外还有附加轴线。如
表示③号轴线后第一根附加的轴线。
因为在平面图上别墅前、后、左、右的布置不同,所以沿四周都标注了3道尺寸。第一道尺寸反映别墅的总长为29040mm,总宽为14940mm;第二道反映了轴间距(即房屋的开间和进深);第三道是柱间墙、柱间门、门洞等的细部尺寸。
由于首层平面图是沿楼梯第一个梯段中门窗洞的位置,水平剖切后向下投影而得到的全剖视图,因此本图除被剖切到的墙身用粗实线绘制、门窗用图例绘制表示,其余室内外的可见部分,如厨卫间的固定设施,楼梯间、台阶、室外散水等细部的主要轮廓线以细实线绘出(习惯画法),并标注相应的尺寸。门窗应标注门窗编号,一般用汉语拼音的第一个大写字母表示,如C表示窗,M表示门。
为反映该房屋的竖直方向内外部情况,在需要进行剖视表达的部分,一层平面图应注有剖视图的标注,如1-1、2-2,表明剖视的名称、位置和投影方向等。室内外的主要地面标高也应注明,如本房屋的室外地面相对标高是-0.450m,室内主要地面的相对标高是±0.000m。
沿房屋的周围设有散水、明沟,墙角设有落水管,主要是满足给排水的需要。楼梯及卫生间都另有详图表示。
图9-12为夹层平面图,由于该联排别墅底层车库和客厅的层高不同,因此在车库上方设置了夹层,布置有娱乐区、餐厅和厨房。注意?轴线南侧为一层客厅上方,与北侧娱乐区之间有栏杆隔开。车库卷帘门上方设置雨棚,表示在夹层平面图中。
图9-13为二层平面图,与一层平面图相比,少了指北针与室外散水等附属设施;不同之处是楼梯的画法,楼梯有上、下两个梯段,各有细实线与箭头指明其前行方向与级数,二层平面图中既表示出通往上一楼层的上行楼梯的局部梯段,也表示出通往下一楼层的下行楼梯的局部梯段。上行部分因剖切的原因有30°的折断线。房间布置也有很大的变化,主要分布有卧室和起居室,每户南面2个主卧室,北面1个次卧室,中间为起居室。另外,每户南北侧各布置了一个阳台或者露台,卫生间1个,通往阳台或露台的房间设置了推拉门(阳台和露台的区别主要在于有无永久性顶盖,有顶盖的称为阳台,无顶盖的称为露台)。注意沿?轴线阳台有一段为轻质墙体且上有开洞。
图9-14是别墅的三层平面图。与二层平面图相比,顶层的楼梯表示方法与一层、二层不同,不再有上行的梯段,细实线与箭头是单一方向的,没有折断线。房间布置也有很大的变化,主要分布有主卧室、书房、卫生间各一个及南北侧各一个露台。
图9-15是别墅的屋顶平面图。主要表示了屋顶、屋面、屋面的坡度、排水的方向及其檐口和屋顶的标高,另外还表示了老虎窗、装饰性烟囱以及太阳能热水器的位置。





9.3.4 门窗表
建筑物的门窗需绘制专门的表格,以便加工订购,门窗表习惯上附在建筑平面图的后面。表9-5是某别墅的门窗表,此表仅提供图中相关的门窗编号、门窗尺寸及数量,有关门窗的具体规格和内容可参见有关产品的标准图集。
表9-5 门窗表

注:外门窗型材为古铜色。
9.3.5 绘图步骤
绘制房屋平面图应按图9-16所示步骤进行:
(1)画出纵横方向的定位轴线(图9-16(a))。
(2)画出墙身线和门、窗位置线(图9-16(b))。
(3)画出门窗、楼梯、卫生设备等的图例,画出3排尺寸线、定位轴线的圆圈(图9-16(c))。
(4)按要求描粗描深图线、标注尺寸,填写定位轴线编号、标高、门窗代号、房间名称等,完成作图(图9-16(d))。

图9-16 平面图绘图步骤
9.4 建筑立面图
9.4.1 建筑立面图的形成和作用
建筑立面图 是在与房屋立面相平行的投影面上所作的正投影图,简称立面图 。房屋有多个立面,通常把反映房屋的主要出入口及反映房屋外貌主要特征的立面图称为正立面图 ,其余的立面图相应地称为背立面图和侧立面图。有时也可按房屋的朝向来为立面图命名,如南立面图、北立面图、东立面图和西立面图等。有定位轴线的建筑物,一般宜根据立面图两端的轴线编号来为立面图命名,如①~
立面图,
~
立面图等。
建筑立面图主要反映房屋的体型和外貌,外墙面的面层材料,色彩,女儿墙的形式,线脚、腰脚、勒脚等饰面做法,阳台的形式及门窗的布置,雨水管的位置等。
建筑立面图内应包括投影方向可见的建筑外轮廓线和建筑构造、构配件、墙面做法以及必要的尺寸和标高等。
9.4.2 建筑立面图的图示内容及画法要求
1)比例
立面图的比例通常采用与平面图相同的比例。
2)定位轴线
一般立面图只画出两端的轴线及编号,以便与平面图对照。
3)图线
为了加强立面图的表达效果,使建筑物的轮廓突出、层次分明,通常选用的线型如下:最外轮廓线(外墙或外包络线)画粗实线(b),其他外墙线画中粗线(0.7b),室外地坪线用加粗线(1.4b)表示,所有突出部位如阳台、雨篷、线脚、门窗洞等画中实线(0.5b),其他部分画细实线(0.25b)。
4)投影要求
建筑立面图中只画投影方向可见的部分,不可见部分一律不表示。
5)图例
由于比例较小,按投影很难将所有细部表达清楚,如门、窗等都是用图例来绘制的,且只画出主要轮廓线及分格线,注意门窗框用双线画。
6)尺寸标注
高度尺寸用标高的形式标注,主要包括建筑物室内外地坪、出入口地面、窗台、门窗洞顶部、檐口、阳台底部、女儿墙压顶及水箱顶部等处的标高。各标高注写在立面图的左侧或右侧且排列整齐。
7)其他标注
房屋外墙面的各部分装饰材料、做法、色彩等用文字说明。
9.4.3 读图实例
图9-17是联排别墅(L-1)的①~
立面图。绘图比例1∶100。它反映该联排别墅南立面的外貌特征及装饰风格。由于该联排别墅外立面虚实相间,凹凸结合,立面变化较多,阅读立面图时应和平面图对应阅读。从该立面图中可以看出联排别墅左右对称,共3层。主入口在联排别墅的南面,注意进户门在侧面,故在立面图上看见台阶却看不到门。二层和三层分别有阳台和露台,有阳台和露台的房间均设置了推拉门。由于设置了夹层,所以从外面可见一层和二层之间的层高为4.5m,二层和三层之间的层高为2.9m。外墙主要装饰材料为青灰色面砖,屋顶为青灰色瓦,局部有变化,具体见图9-17。顶层屋面为同坡坡面,坡度为1∶2。屋顶设有老虎窗和装饰性的烟囱,并配置了太阳能热水器。
别墅的外轮廓用粗实线,其他墙线用中粗线,室外地坪线用加粗线,门窗洞、凸出的雨篷、阳台、立面上其他凸出的部分及引出线、标高符号等用中线。图例填充线等用细实线画出,并用文字注明墙面的做法。
立面图中应标注必要的高度方向尺寸,如室外地坪、窗台、门窗洞顶、檐口、屋顶等主要部位的标高。在图9-17中高度方向有3排尺寸,外面一排为标高尺寸和总高尺寸,主要表示突出部位的高度及总高;中间一排尺寸为层高尺寸,主要表示每一层的高度;最里面一排尺寸标注出窗洞、窗间墙的高度。此外,还应标注出房屋两端的定位轴线位置及其编号,以便与平面图对应起来。
图9-18
~
立面图是该联排别墅的东立面图,绘图比例同南立面图,基本画法与南立面图大致相同。由东立面图可见该联排别墅的每层都错落有致,层次感很强。和平面图对应,可见一层分别沿④轴线和⑧轴线,两户之间设置隔墙向南延伸,墙顶高度为2.60m。二楼南面两端的两户人家设置了较大的阳台和露台,中间两户阳台较小,在立面图上中间的阳台被遮挡。北面均设置了较大的阳台和露台,每户之间被墙体隔断,各自独立。由于两端略凹中间凸出,故在东立面上均可见一些轮廓,其余部分被墙体遮挡。三楼南面设置整片露台,中间被墙体隔断,各户各自独立。北面则对应套间各自设置露台。墙面装饰和南立面图大致相同,具体见图9-18。屋顶做法相同。
图9-19
~①是该联排别墅的北立面图,阅读时要注意墙体的凹凸变化。与平面图对应阅读可见,北侧外墙沿?轴线由一层到三层变化不大,但是?轴线上外墙和?轴线上外墙有变化,?轴线和?轴线上外墙均由一层一直向上延伸至二层阳台底部,但沿?轴线在二层阳台设置了轻质隔墙,为体现立面虚实效果并设置了空洞。另外注意屋顶窗的做法。其余在图示特点及饰面做法与南立面和东立面相同,这里不再复述。



9.4.4 绘图步骤
绘制房屋立面图应按图9-20所示步骤进行:
(1)画基准线,即按尺寸画出房屋的横向定位轴线和层高线(图9-20(a))。
(2)画墙轮廓线和门窗洞线(图9-20(b))。
(3)按规定画门窗图例及细部构造并标注标高尺寸和文字说明等(图9-20(c))。

图9-20 立面图绘制步骤
9.5 建筑剖面图
9.5.1 建筑剖面图的形成和作用
建筑剖面图是房屋的垂直剖面图。假想用一垂直于外墙轴线的铅垂剖切面将房屋剖开,移去剖切平面与观察者之间的部分,把留下的部分投影到与剖切平面平行的投影面上,所得到的正投影图称为建筑剖面图,简称剖面图 。
建筑剖面图主要表示房屋内部的结构形式和构造方式、分层情况、各部位的联系及其高度、材料、做法等。在施工过程中,建筑剖面图是进行分层、砌筑内墙、铺设楼板、屋面板和楼梯以及内部装修等工作的依据。建筑剖面图与建筑平面图、建筑立面图相互配合,表示房屋全局,是施工图中最基本的图样。
剖面图的数量应根据房屋的复杂程度和施工中的实际需要而定。剖面图的剖切部位,应根据图样的用途或设计深度,在平面图上选择能反映全貌、构造特征,以及有代表性或有变化的部位剖切,选择在内部结构和构造比较复杂的部位,如主要出入口、门厅、门窗洞、楼梯等处。剖面图的图名应与平面图上所标注的剖切符号编号一致,如1-1剖面图、2-2剖面图等。
剖面图中的材料图例、装修层、楼地面面层线的表示原则及方法与平面图一致。
9.5.2 建筑剖面图的图示内容及画法要求
1)比例
剖面图的比例一般与平面图相同。
2)定位轴线
画出剖面图两端的定位轴线及编号以便与平面图对照。有时也可注写中间位置的轴线。
3)图线
一般被剖切到的墙、梁和楼板断面轮廓线用粗实线(b)绘制,对于预制的楼层、屋顶层在1∶100的平面图中只画两条粗线表示(b)表示,而对于现浇板则涂黑表示。在1∶50的剖面图中宜在结构层上方画一条作为面层的中粗线(0.7b),下方底板的粉刷层不表示,剖切到的细小构配件断面轮廓线和未剖切到的可见轮廓线用中线(0.5b)绘制,可见的细小构配件轮廓线用细线(0.25b)绘制,室内外地坪线用加粗线(1.4b)表示。(简易画法同平面图)
4)投影
剖面图中除了要画出被剖切到的部分,还应画出投影方向能看到的部分。室内地坪以下的基础部分,一般不在剖面图中表示,而在结构施工图中表达。
5)尺寸标注
一般沿外墙注3道尺寸线:最外面一道是室外地面以上的总高尺寸;第二道为层高尺寸;第三道为勒脚高度、门窗洞高度、洞间墙高度、檐口厚度等细部尺寸。这些尺寸与立面图吻合。另外,还需要用标高符号标出各层楼面、楼梯休息平台等的标高。
6)图例
门、窗按规定图例绘制,砖墙、钢筋混凝土构件的材料图例与建筑平面图相同。
7)其他标注
某些局部构造表达不清楚时可用索引符号引出,另绘详图。细部做法如地面、楼面的做法,可用多层构造引出标注。
9.5.3 读图实例
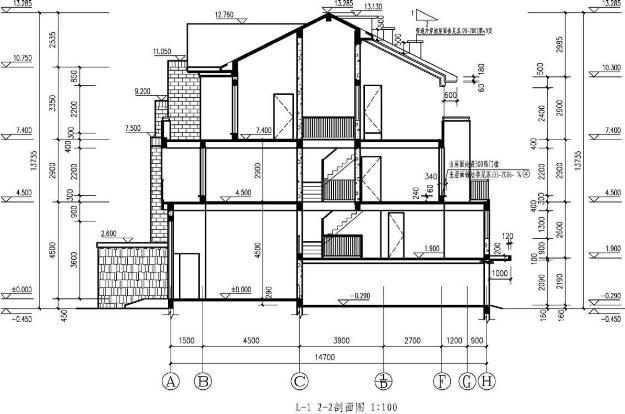
图9-21为某联排别墅的1-1剖面图,是按图9-11一层平面图中1-1剖切位置绘制的。一般建筑平面图的剖切位置选择通过门窗洞和内部结构比较复杂或有变化的部位,如果一个剖切平面不能满足要求时,可采用阶梯剖面。

图9-21 1-1剖面图 1∶100
将剖面图的图名和轴线编号与一层平面图上的剖切位置和轴线编号相对照,可知1-1剖面图是假想一个竖直的剖切平面,沿②~③轴线之间,由北向南先剖开JLM2420及以上墙体进入车库,再剖开车库和客厅之间墙体、地面等,然后向南穿过客厅,剖开南面C3036及墙体,横向将房屋完全剖开的1-1全剖面图。1-1剖面图中画出房屋地面到屋顶的结构形式和材料符号,结合平面图中各轴线相交处的涂黑标记可以看出,这幢框架结构的联排别墅的构造柱和水平方向承重构件(圈梁、板等)均用钢筋混凝土材料制成。
按《建筑制图标准》(GB/T 50104—2010)的规定,在1∶100的剖面图中抹面层可不画,剖切到的构配件轮廓线,如本图的室外地坪线用加粗线绘制,被剖切到的墙、梁和楼板断面的轮廓线用粗实线绘制,且这些部分的材料符号可简化为砖墙涂红、钢筋混凝土的梁和板涂黑表示。剖切平面后的可见轮廓线,如门、窗洞和露台栏杆等,以及剖切到的门、窗户图例用中实线绘制。本案例中外墙选用砂加气混凝土砌块,内墙采用灰加气的混凝土砌块。同时为了立面效果,看到的墙体部分也绘制出了不同的外墙装饰图案。由图中可见,底层室内地面,客厅地面为相对标高基准,标高为±0.000m,车库标高为-0.290m。车库上方到二层之间设有夹层,夹层层高为2.19m。一层主要部分层高为4.5m,二层层高为2.9m。局部表达不清楚的,标明索引符号,另外绘制详图。
同时,由于这栋房屋的构造比较复杂,还绘制了2-2、3-3剖面图。图9-22的2-2剖面图是将竖直剖切面沿⑤~⑥轴线之间,主要表达了中间这户人家的内部结构布置以及构造方式。由南向北,剖开车库、客厅以及上部的门、窗、墙体、楼(地)面等的全剖面图。由图中可见中间这户人家北侧车库进深较大。由?轴线一直延伸至?轴线。由于该联排别墅为对称布置,1-1剖面图剖在②~③轴线之间向东侧投影,2-2剖面图则剖在⑤~⑥轴线之间向西侧投影。

图9-22 2-2剖面图 1∶100
图9-23的3-3剖面图则主要剖在楼梯间。是将竖直剖切面沿③~④轴线之间,由南向北剖开保姆房、卫生间、客厅、门厅以及上部的墙体、楼(地)面、门窗等的全剖面图。主要表达了各层内部结构和楼梯间的布置情况。

图9-23 3-3剖面图 1∶100
9.5.4 绘图步骤
绘制房屋剖面图应按图9-24所示步骤进行。
1)主要轮廓
先画出水平方向的定位轴线,女儿墙、屋(楼层)面、室内外地面的顶面高度线(图9-24(a))。
2)细部构造
画剖切到的内外墙、屋(楼)面板、楼梯与平台板梁、圈梁等主要配件的轮廓线,以及可见的细部构造轮廓线(图9-24(b))。
3)标注尺寸,完成作图
检查描深图线,注全所需全部尺寸、定位轴线、标高、注写图名比例(图9-24(c))。


图9-24 剖面图的画法
9.6 建筑详图
9.6.1 建筑详图的作用及特点
在施工图中,对房屋的细部或构配件用较大的比例(如1∶20、1∶10、1∶5、1∶2、1∶1等)将其形状、大小、材料和做法等,按正投影的方法,详细而准确地画出来的图样,称为建筑详图 ,简称详图。详图也称大样图或节点图 。
建筑详图是建筑平、立、剖面图的补充,是房屋局部放大的图样。详图的数量视需要而定,详图的表示方法视细部构造的复杂程度而定。详图同样可能有平面详图、立面详图或剖面详图。当详图表示的内容较为复杂时,可在其上再索引出比例更大的详图。
详图的特点是比例较大 ,图示详尽清楚,尺寸标注齐全 ,文字说明详尽 。
详图所画的节点部位,除在有关的平、立、剖面图中绘出索引符号外,还需在所画详图上绘制详图符号和注明详图名称,以便查阅。
9.6.2 外墙剖面节点详图
外墙是建筑物的主要部件,很多构件和外墙相交,正确反映它们之间的关系很重要。外墙剖面节点的位置明显,一般不需要标注剖切位置。外墙剖面节点详图通常采用1∶10、1∶20或者1∶50的比例绘制。
图9-25是别墅的外墙剖面节点详图。外墙节点详图①是坡屋顶的剖面节点,它表明屋顶、墙、檐口的关系和做法。屋顶的做法用多层构造引出线表示,引出线应通过各层,文字说明按构造层次依次进行分层标注。本例是一个斜屋面,檐口标高为10.750m。屋面做法为:钢筋混凝土的屋面板上抹15mm厚1∶2水泥砂浆找平,然后铺上高聚物改性沥青防水卷材2道,40mm厚保温层,20mm厚1∶3水泥砂浆找平层,1∶3水泥砂浆卧瓦层,最后挂上混凝土瓦。檐口设置檐沟用于排水,贴瓦和封檐参见苏J10—2003第12页②。

图9-25 外墙剖面节点详图1∶50
节点详图②是露台的剖面节点详图,它表明外墙、露台地面、泛水以及栏杆的做法及相互关系。露台的做法:现浇钢筋混凝土上建筑找坡2%,具体泛水做法见苏J03-2006-12②。栏杆采用φ22钢筋,上置硬木扶手。其他具体尺寸如图9-25所示。
以上各节点的位置均标注在1-1剖面图中,可以对照阅读。外墙从上到下还有许多节点,但类型基本上和这两种类似。
9.6.3 楼梯详图
楼梯是多层房屋上下交通的主要构件,在使用上对它的要求主要是行走方便、疏散顺畅和坚固耐用。通常楼梯为双跑平行楼梯,每层由2个梯段和1个休息平台组成,如图9-26所示。

图9-26 楼梯立体图
楼梯详图包括楼梯平面图、剖面图以及节点详图。主要表示楼梯的类型、结构形式、材料、尺寸及装修做法等,以满足楼梯施工放样的需要。
图9-27是楼梯平面图,比例为1∶50。楼梯平面图实质上是楼梯间的水平剖面图,剖切位置通常在每层的第一梯段的适当位置,按规定图中梯段用30°的斜折断线断开表示,与整幢房屋的平面图一样。由于各层楼梯的平面情况不尽相同,一般每层都有一个楼梯平面图,如果中间数层平面布局完全一样,也可以标准层平面图示之。楼梯剖面图一般剖在一侧梯段处,向另外一侧梯段方向投影。楼梯剖面图的剖切位置与编号应标于首层平面图的上行梯段处,并在上、下梯段处画一长箭头,并注写“上”或“下”字和踏步级数,表明从该层楼(地)面到达上一层或下一层楼(地)面的踏步级数。
楼梯详图中,应注出楼梯间的开间和进深尺寸,楼地面和平台的标高尺寸,以及其余细部的详细尺寸。梯段的尺寸标注方法是:梯段的水平长度应表示为踏面宽乘以踏面数,应注意:踏面数=踏步数-1。如:底层第一梯段有6级,踏步宽为230mm,梯段的水平长度应注写230×5=1150;剖面图梯段高度应表示为踢面高乘以踢面数,如底层第一梯段有6级,踏步高为158mm,梯段的高度应注写158×6=950。

图9-27 楼梯平面图
由楼梯平面、剖面图可以看出,该住宅楼各层楼梯的平面布置是不同的,由于车库上方设置了夹层,故绘制了夹层楼梯平面图。一层既有下行的2个踏步通向洗衣房,又有上行的12个梯级通向夹层;夹层在水平剖切面以下既可看到通往二层的一段上行楼梯,即“上14级”,又可看到一层楼面以下的一段下行楼梯,即“下12级”;二层在水平剖切面以下既可看到通往三层的一段上行楼梯,即“上16级”,又可看到一层楼面以下的一段下行楼梯,即“下14级”;顶层因再无上行梯段,只可见向下至二层的梯段“下16级”,同时平面图中多了一处楼梯栏板,也没有了梯段中的折断线。
为加强楼梯平、剖面图和其他图样的联系,平面图上的定位轴线应予画出,楼梯剖面图的剖切位置、投影方向、编号都应在一层平面图中注出。
在《建筑制图标准》中规定,比例大于或者等于1∶50的平面图、剖面图,宜画出楼地面、屋面的面层线,抹灰线的面层线根据需要而定,对材料图例未作出明文规定。本图中的钢筋混凝土在平面图和剖面图分别以材料图例的形式表现,一般砖墙的材料图例用45°的细实线表示。本案例中外墙选用砂加气混凝土砌块,内墙采用灰加气的混凝土砌块,材料图例如图所示,抹灰层的材料图例省略未画。

图9-28 楼梯1-1剖面图 1∶50
9.6.4 门窗详图
门窗具体见表9-5门窗表,但有些非标准门窗,另外列出门窗详图。

图9-29 门窗详图
9.7 园林建筑图
9.7.1 园林建筑概述
1)园林建筑的特点
园林设计,主要指在园林中成景的,同时又为人们赏景、休息或起交通作用的建筑设计和建筑小品的设计,如园亭、园廊等。园林建筑不论单体还是组群,通常是结合地形、植物、山石、水池等组成景点、景区或园中园,它们的形式、体量、尺度、色彩以及所用的材料等,同所处位置和环境的关系特别密切(图9-30)。因地因景,得体合宜,是园林建筑设计必须遵循的原则。
从园林中所占面积来看,建筑是无法和山、水、植物相提并论的。它之所以成为“点睛之笔”,能够吸引大量游览者,就在于它具有其他要素无法替代的、最适合于人活动的内部空间,是自然景色的必要补充。尤其在中国,自然景观和人文景观相互依存,缺一不可,建筑便理所当然地成为后者的寄寓之所和前者的有力烘托。中国园林建筑形式之多样,色彩之别致,分隔之灵活,内涵之丰富,在世界上享有盛名。

图9-30 某小区园林建筑
2)园林建筑的功能
园林建筑的特点主要表现在它对园林景观的创造所起的积极作用,这种作用可以概括为下列4个方面:
(1)点景
点景即点缀风景(图9-31)。建筑与山水、花木种植相结合而构成园林内的许多风景画面,有宜于就近观赏的,有适合于远眺的。在一般情况下,建筑物往往是这些画面的重点或主题;没有建筑也就不成其为“景”,无以言园林之美。重要的建筑物常常作为园林的一定范围内甚至整座园林的构景中心,园林的风格在一定程度上也取决于建筑的风格。

图9-31 园林建筑的功能(1)
(2)观景
观景即观赏风景(图9-31)。以一幢建筑物或一组建筑群作为观赏园内景物的场所;它的位置、朝向、封闭或开敞的处理往往取决于得景之佳否,即是否能够使得观赏者在视野范围内摄取到最佳的风景画面。在这种情况下,大至建筑群的组合布局,小至门窗洞口或由细部所构成的“框景”,都可以利用作为剪裁风景画面的手段。
(3)范围园林空间
范围园林空间即利用建筑物围合成一系列的庭院(图9-31),或者以建筑为主,辅以山石花木,将园林划分为若干空间层次。
(4)组织游览路线
以道路结合建筑物的穿插、对景和障隔,创造一种步移景异,具有导向性的游动观赏效果(图9-32)。

图9-32 园林建筑的功能(2)
9.7.2 园林初步设计图
园林建筑的设计,一般要经过初步设计、技术设计和施工设计3个阶段。初步设计图应反映出建筑物的形状、大小和周围环境等内容,用以研究造型、推敲方案。方案确定后,再进行技术设计和施工设计。园林建筑初步设计图包括园林建筑总平面图,园林建筑平、立、剖视图,以及园林建筑透视图。
园林建筑总平面图,园林建筑平、立、剖视和园林透视图,房屋建筑总平面图,房屋建筑平、立、剖视和房屋透视图的表示方法基本相同,故在这里不再详细叙述,本章节只讲述与房屋建筑施工图表达不相同的部分。
1)园林建筑总平面图
园林建筑总平面图(如图9-33)是表示新建建筑物所在基地内总体布置的水平投影图。图中要表示出新建工程的位置、朝向以及室外场地、道路、地形、地貌、绿化等情况。它是用来确定建筑与环境关系的图纸,为以后的设计、施工提供依据。

图9-33 园林建筑总平面图
绘制园林建筑总平面图应遵守建筑《总图制图标准》(GB/T 50103—2010),其中部分园林小品图例可参照《风景园林图例图示标准》(CJJ67—95)。表达方法及图示内容基本同房屋建筑总平面图。
2)园林建筑平面图
(1)园林建筑平面图的内容与用途
建筑平面图是沿建筑物窗台以上部位(没有门窗的建筑过支撑柱部位)经水平剖切后所得的剖视图。建筑平面图是建筑设计中最基本的图纸,用于表现建筑方案,并为以后的设计提供依据。
(2)园林建筑平面图绘制方法
①涂实法
此法平涂于建筑物之上,用以分析建筑空间的组织,适用于功能分析图(图9-34)。
②抽象轮廓法
该法适用于小比例总体规划图,以反映建筑的布局及相互关系(图9-35)。

图9-34 涂实法

图9-35 抽象轮廓法
③平顶法
此法将建筑屋顶画出,可以清楚地辨出建筑顶部的形式、坡向等型制,适用于总平面图(图9-36)。

图9-36 平顶法
④剖平面法
剖平面法适用于大比例绘图,该法清晰地表达出园林建筑平面布局,是较常用的绘制单体园林建筑的方法(图9-37)。

图9-37 剖平面法
3)园林建筑立面图
(1)园林建筑立面图的内容与用途
建筑立面图是将建筑物的立面向与其平行的投影面投影所得的投影图。建筑立面图应反映建筑物的外形及主要部位的标高。立面图能够充分地表现出建筑物的外观造型效果,可以用于确定方案,并作为设计和施工的依据。
(2)绘制要求
①线型
立面图的外轮廓线用粗实线,主要部位轮廓线如勒脚、窗台、门窗洞、槽口、雨篷、柱、台阶、花池等用中实线。次要部位轮廓线如门窗扇线、栏杆、墙面分格线、墙面材料等用细实线。地坪线用特粗线。
②尺寸标注
立面图中应标注主要部位的标高,如出入口地面、室外地坪、槽口、屋顶等处,标注时注意排列整齐,力求图面清晰,出入口地面标高为±0.000。
③绘制配景
为了衬托园林建筑的艺术效果,根据总平面图的环境条件,通常在建筑物的两侧和后部绘出一定的配景,如花草、树木、山石等。绘制时可采用概括画法,力求比例协调、层次分明(图9-38)。
图9-38 立面图
4)园林建筑剖视图
建筑剖视图(图9-39)是假想用一个垂直的剖切平面将建筑物剖切后所获得的。建筑剖视图用来表示建筑物沿高度方向的内部结构形式和主要部位的标高。剖视图与平面图和立面图配合,可以完整地表达建筑物的设计方案,为进一步设计和施工提供依据。园林建筑剖视图的表示同9.5节建筑剖视图。

图9-39 剖视图
5)园林建筑透视图
园林建筑透视图(图9-40)主要表现建筑物及配景的空间透视效果,它能够充分直观地表达设计者的意图,比园林建筑立面图更直观、更形象,有助于设计方案的确定。
园林建筑透视图所表达的内容应以建筑为主,配景为辅。应以总平面图的环境为依据,为避免遮挡建筑物,配景可有取舍,建筑透视图的视点一般应选择在游人集中处。

图9-40 透视图
9.7.3 园林建筑施工图的阅读
1)园林建筑施工图
建筑施工图应反映出建筑物各部形状、构造、大小及做法,它是建筑施工的重要依据。因此,只有读懂建筑施工图,才能正确地指导施工。
园林建筑中的亭(图9-41)既是点景也是观景,既提供休息环境的场所,又与周围景色协调,与远近景色构成丰富的空间层次是古典园林中非常重要的一个组成部分。亭子的种类很多,这里以方亭为例介绍园林建筑施工图的阅读方法。
为了便于阅读,先介绍一下方亭的各部组成。图9-42为方亭的立体图,由图可见,方亭由台座、柱、梁、屋顶及挂落、座椅、台阶组成。

图9-41 亭

图9-42 亭的组成
阅读方法如下:
(1)读平面图
从平面图中了解图名、比例及方位,明确平面形状和大小、轴间尺寸、柱的布置及断面形状、座椅的位置、台阶布置、室内地面装修等。从图9-43可见,方亭为正方形,柱中心距为3.00m,柱为直径200mm的圆柱,三面设置座椅,一面为台阶,台阶未表示,台座长、宽均为4.00m。
(2)对照平面图读立面、剖视图
明确亭的外貌形状和内部构造情况及主要部位标高。由立、剖视图(图9-43)中可见该亭为攒尖顶方亭,结构形式为钢筋混凝土结构,由柱、梁、屋顶承重。梁下饰有挂落,下部设有座椅。台座高为±4.50m,台下地坪标高为±0.00m。三面设座椅,一侧设置台阶,未标明。台座由混凝土砌筑,方砖地面,白水泥白石屑斩假石台口。其余各部装修见说明。由图9-43可见,屋顶做法采用钢筋混凝土桁条,上铺20mm厚钢丝网水泥砂浆,50mm厚钢筋混凝土现浇,上铺灰筒瓦。

图9-43 亭的建筑施工图(1)
(3)读平面图及屋顶角钢布置图
了解四角亭平面大小及布置情况,可见四角亭为4000mm×4000mm,三面设置座椅,一面台阶,柱间距为3000mm,采用200mm的钢管。由屋顶角钢布置图可知屋顶采用?50×5的角钢沿对角线布置,并沿屋顶四周设置圈梁。
(4)读详图
详图明确各细部的形状、大小及构造。
由鼓墩大样图可知鼓墩的具体尺寸。由宝顶大样图可见,宝顶上部为方棱锥形,下部呈圆柱形,露出屋面高度为1.00m,其余在屋面以下。有宝顶配筋大样图可见宝顶内由上至下配置了共8根φ16的钢筋以及对应的φ6@200的箍筋。
由山墙板图可知山墙板的标高以及板的竖向配筋,山墙板竖向配置φ6@200的双向钢筋网,结合屋顶角钢布置图以及2号详图可知山墙板与屋顶角钢的连接情况,还布置了6φ16的通长钢筋。由山墙板配筋可见屋顶配置了φ8@150的钢筋网。
由屋顶坡面曲线图,可知屋顶坡面曲线形状及尺寸。由于钢筋混凝土屋面现浇,故屋面曲线可直接现浇得到,尺寸如图9-44所示。

图9-44 亭的建筑施工图(2)
由座椅大样图可见座椅设于两柱之间,座板宽320mm,厚80mm,座板内设置3φ8通长钢筋及φ4@200分布筋,白水泥米黄色石子水磨座凳板面。美人靠采用φ20@200钢筋与座板相连,扶手为6mm×50mm通长白水泥米黄色石子水磨。看详图(图9-44)时,要根据详图符号对照索引符号或剖切符号,找到所指部位,对照读图。由①号剖面详图中可见,座椅下部为钢筋混凝土结构,再由E-E剖面详图可知内置3根φ8通长钢筋。
2)假山工程施工图
假山根据使用材料不同,分为土山和石山,本例为石山。
假山施工图主要包括平面图、立面图、剖(断)面图、基础平面图,对于要求较高的细部,还应绘制详图说明。
平面图表示假山的平面布置、各部的平面形状、周围地形和假山所在总平面图中的位置。
立面图表现山体的立面造型及主要部位高度,与平面图配合,可反映出峰、峦、洞、壑的相互位置。为了完整地表现山体各面形态,便于施工,一般应绘出前、后、左、右4个方向立面图(因篇幅所限,例图中只绘出正立面图)。
剖视图表示假山某处内部构造及结构形式、断面形状、材料、做法和施工要求。
基础平面图表示基础的平面位置及形状。基础剖视图表示基础的构造和做法,当基础结构简单时,可同假山剖视图绘在一起或用文字说明。
假山施工图中,由于山石素材形态奇特,施工中难以完全符合设计尺寸要求。因此,没有必要也不可能将各部尺寸一一标注,一般采用坐标方格网法控制。方格网的绘制,平面图以长度为横坐标,宽度为纵坐标;立面图以长度为横坐标,高度为纵坐标;剖视图以宽度为横坐标,高度为纵坐标。网格的大小根据所需精度而定,对要求精细的局部,可以用较小的网格示出。网格坐标的比例应与图中比例一致。
假山工程施工图的阅读,一般按以下步骤进行(参阅图9-45)。

图9-45 假山工程施工图
(1)看标题栏及说明
从标题栏及说明中了解工程名称、材料和技术要求。本例为驳岸式假山工程。
(2)读平面图
从平面图中了解比例、方位、轴线编号,明确假山在总平面图中的位置、平面形状和大小及其周围地形等。图9-45中山体处于横向轴线
~
与纵向轴线○G的相交处,长约16m,宽约6m,呈狭长形,中部设有瀑布和洞穴,前后散置山石,倚山面水,曲折多变,形成自然式山水景观。
(3)读立面图
从立面图中了解山体各部的立面形状及其高度,结合平面图辨析其前后层次及布局特点,领会造型特征。从图9-45中可见,假山主峰位于中部,高为6m,位于主峰右侧的4m高处设有二迭瀑布,瀑布右侧置有洞穴及谷壑,形成动、奇、幽的景观效果。
(4)读剖视图
对照平面图的剖切位置、轴线编号,了解断面形状、结构形式、材料、做法及各部高度。
从图9-45中可见,1-1剖面是过瀑布剖切的,假山山体由毛石挡土墙和房山石叠置而成,挡土墙背靠土山,山石假山面临水体,两级瀑布跌水标高分别为3.80m和2.30m。2-2剖面取自较宽的
轴附近,谷壑前散置山石,增加了前后层次,使其更加幽深。
(5)读基础平面图和基础剖视图
了解基础平面形状、大小、结构、材料、做法等。由于本例基础结构简单,基础剖视图绘在假山剖视图中,毛石基础底部标高为-1.50m,顶部标高为-0.30m。具体做法见说明。





.jpg)
.jpg)
