
7.4 混凝土楼梯的类型与构造
在多层房屋中,楼梯是各楼层间的主要垂直交通设施。由于钢筋混凝土具有坚固、耐久、耐火等优点,故钢筋混凝土楼梯在多层建筑中得到广泛应用。
钢筋混凝土楼梯有现浇整体式和预制装配式两类,但预制装配式楼梯整体性较差,应用较少。在现浇整体式楼梯中,有平面受力体系的普通楼梯和空间受力体系的螺旋式或剪刀式楼梯。以下仅介绍在工程中大量采用的平面受力体系的普通楼梯。
现浇钢筋混凝土普通楼梯又分为梁式楼梯和板式楼梯两种。梁式楼梯在大跨度(如水平投影大于4 m)时较经济,但构造复杂、外观笨重,在工程中较少采用;板式楼梯虽在大跨度时不经济,但因构造简单、外观轻巧,在工程中得到广泛应用。
・7.4.1 现浇板式楼梯・
板式楼梯有普通板式和折板式两种形式,如图7.19所示。
1)普通板式楼梯
(1)结构组成和荷载传递
普通板式楼梯由梯段板、平台板和平台梁组成。普通板式楼梯的梯段板为表面带有三角形踏步的斜板。梯段板上的荷载以均布荷载的形式传给斜板,斜板以均布荷载的形式传给平台梁,故平台梁上不存在集中荷载。
(2)结构设计要点
①梯段板厚度可取为l0/(25~30),l0为斜板的水平计算跨度,一般可取为100~120 mm。
②梯段板可简化为两端支承在平台梁上的简支斜板来计算,梯段板的跨中最大弯矩按其水平投影跨度和按单位水平投影长度线荷载计算,梯段板的跨中弯矩可取为Mmax=(g+q)l20/8。
③受力筋可采用分离式(图7.20),支座应设置构造负筋,伸进斜板ln/4(ln为斜板的净跨)。

图7.19 板式楼梯

图7.20 板式楼梯分离式配筋
④梯段板中的分布筋应沿梯段长度方向设置在受力筋内侧,至少应在每个踏步下设置1根。
平台板一般为单向板,可取1 m宽板带作为计算单元,按简支板计算。当板的一边与平台梁相连,另一边支承在墙上时,板的跨中弯矩应按
计算;当两端与梁整浇时,考虑梁对板的约束,板的跨中弯矩可取为
。当为双向板时,则可按四边简支双向板计算。因板的四周受到梁或墙的约束,故应配不少于
8@200构造负筋,伸出支座边ln/4。
平台梁承受平台板和梯段斜板传来的均布荷载,按简支梁计算,其计算和构造与一般受弯构件相同。
2)折板式楼梯
当板式楼梯设置平台梁有困难时,可取消平台梁,做成折板式,如图7.21所示。折板由斜板和水平板组成,两端支承于楼盖梁或楼梯间纵墙上,故而跨度较大。折板式楼梯的设计要点如下:
①斜板和平板厚度可取为l0/(25~30)。
②因板较厚,楼盖梁对板的相对约束较小,折板可视为两端简支。
③折板水平段的均布恒载小于其斜段的均布恒载g,为简化起见,也可近似取为斜段的均布恒载g,折板的弯矩可取为
④内折角处的受拉钢筋必须断开后分别锚固,当内折角与支座边的距离小于ln/4时,内折角处的板面应设构造负筋,伸出支座边ln/4。

图7.21 折板式楼梯配筋
・7.4.2 现浇梁式楼梯・
1)结构组成和荷载传递
现浇梁式楼梯由踏步板、斜梁、平台板和平台梁组成,如图7.22所示。

图7.22 梁式楼梯
梯段上的荷载以均布荷载的形式传递给踏步板,踏步板以均布荷载的形式传给斜梁,斜梁以集中力的形式传给平台梁,同时平台板以均布荷载的形式传给平台梁,最后梁以集中力的形式传给楼梯间的侧墙或柱。
2)结构设计要点
(1)踏步板
梁式楼梯的踏步板为两端斜支在斜梁上的单向板,一般取一个踏步为计算单元(图7.23),按简支计算。踏步的高度c由构造设计确定,踏步板厚δ一般取30~40 mm。由图可知,踏步板的截面为比较特殊的梯形截面,为方便计算,可简化为高度为梯形中位线的折算矩形截面进行计算,折算高度近似地取梯形截面的平均高度,即
踏步板的配筋需按计算确定,且每一级踏步不得少于2
8的受力钢筋。沿梯段宽度方向应布置间距不大于250 mm的
6分布钢筋。梁式楼梯的踏步板同时应配置负弯矩钢筋,并伸出斜梁边ln/4(ln为踏步板净跨度)。
考虑到斜梁对踏步板的约束,可取
,l0为踏步板的计算跨度。

图7.23 梁式楼梯踏步板
(2)斜梁
梁式楼梯的斜梁两端支承在平台梁上,斜梁的跨中最大弯矩及支座最大剪力按其水平投影跨度l0和按单位水平投影长度线荷载计算,斜梁的截面高度可取l0/15,梁的均布荷载包括踏步传来的荷载和梁自重。应注意:斜梁的纵向受力钢筋在平台梁中应有足够的锚固长度。
(3)平台梁
梁式楼梯的平台梁承受斜梁传来的集中荷载、平台板传来的均布荷载及平台梁自重,可按简支矩形梁计算。平台梁虽有平台板协同工作,但仍宜按矩形截面计算,且宜将配筋适当增加以抗扭。此外平台梁受有斜梁的集中荷载,所以在位于斜梁支座两侧处,应增设附加箍筋。
平台梁的截面高度应保证斜梁的主筋能放在平台梁的主筋上,即在平台梁与斜梁的相交处,平台梁的底面应低于斜梁的底面,或与平台梁平齐。
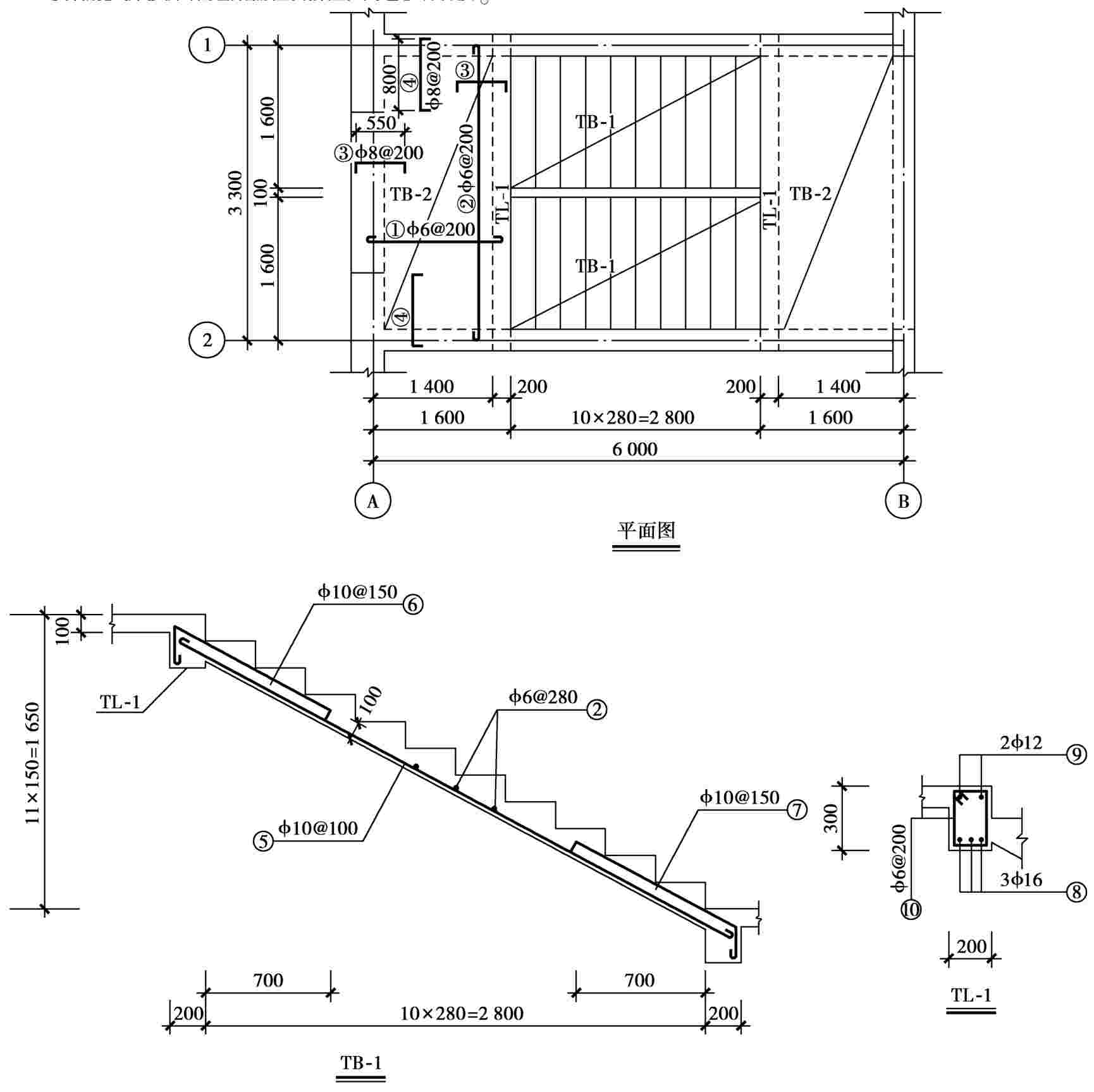
・7.4.3 板式楼梯设计实例・
某教学楼楼梯结构布置如图7.24所示,采用C20混凝土,HPB300级钢筋,踏步面层为20 mm厚水泥砂浆,板底为20 mm厚混合砂浆抹灰,楼梯踏步详图如图7.25所示。试设计此板式楼梯。
1)梯段斜板TB-1
该板的倾斜角度为:
(1)计算跨度和板厚
计算跨度:l0=ln+a=2.8 m+0.2 m=3.0 m
板厚:
(2)荷载计算
取1 m宽为计算单元。
①恒载:

图7.24 楼梯结构布置图

图7.25 楼梯踏步详图
三角形踏步自重
20 mm厚水泥砂浆面层
20 mm厚混合砂浆板底抹灰

(3)内力计算
![]()
(4)配筋计算
h0=100 mm-25 mm=75 mm α1 fc=9.6 N/mm2
HPB300级钢筋,fy=270 N/mm2
![]()
查表得 γs=0.857
![]()
选用
10@100(As=785 mm2)
2)平台板TB-2
(1)计算跨度和板厚
板厚:h=80 mm
![]()
(2)荷载计算
取1 m宽为计算单元。
①恒载:


(3)内力计算
![]()
(4)配筋计算
h0=(80-25)mm=55 mm
α 1 fc=9.6 N/mm2
HPB300级钢筋,fy=270 N/mm2
![]()
查表得 γs=0.969
![]()
选用
6@200(As=141 mm2)
3)平台梁TL-1
(1)计算跨度及截面
平台梁截面尺寸:b×h=200 mm×300 mm
计算跨度:l0=ln+a=3.06 m+0.24 m=3.3 m>1.05ln=1.05×3.06 m=3.213 m取l0=3.213 m
(2)荷载计算
恒载及活荷载:
梯段板传来
平台板传来
平台梁自重 0.2×(0.3-0.08)×25 kN/m2×1.2=1.320 kN/m
梁侧抹灰重 0.02×2×(0.3-0.08)×17 kN/m2×1.2=0.180 kN/m
设计值 g+q=24.816 kN/m
(3)内力计算
![]()
![]()
(4)配筋计算
①正截面承载力计算
h0=300 mm-45 mm=255 mm α 1 fc=9.6 N/mm2
HPB300级钢筋,fy=270 N/mm2
![]()
查表得 γs=0.849
![]()
选用3
16(As=603 mm2)
②斜截面承载力计算

按构造要求,选用
6@200,沿梁长均匀布置。
4)构件配筋图
此板式楼梯的配筋图如图7.26所示。

图7.26 楼梯构件配筋图
上一篇:基于分块样本极大值法的流动性风险
下一篇:市场营销战略属于什么战略





.jpg)
.jpg)
