
10 结构施工图
10.1 概述
10.1.1 结构施工图的内容和分类
房屋结构施工图是根据房屋建筑中的承重构件进行结构设计后画出的图样。结构设计要求进行结构选型、构件布置,再通过力学计算确定承重构件的断面形状、大小、材料及内部构造等。结构施工图是施工的主要依据之一,主要用于放灰线、挖基槽、安装模板、配筋、浇筑混凝土等施工过程,也是预算和施工进度计划的依据。结构施工图一般可分为结构布置图 和构件详图两大类
结构布置图是房屋承重结构的整体布置图。主要表示结构构件的位置、数量、型号及相互关系。房屋的结构布置按需要可用结构平面图、立面图、剖面图表示,其中结构平面图较常使用。如基础布置平面图、楼层结构平面图、屋面结构平面图、柱网平面图等。
结构构件详图是表示单个构件形状、尺寸、材料、构造及工艺的图样,如梁、板、柱、基础、屋架等构件详图。
常用房屋结构可按结构形式分为框架结构、桁架结构、空间结构 等;也可按承重构件的材料分为混合结构 、钢筋混凝土结构 、砖石结构 、钢结构 、木结构等。
结构施工图一般包括结构设计总说明、基础平面图及基础详图、楼层结构平面图、屋面结构平面图、结构构件详图。
10.1.2 绘制结构施工图的有关规定
绘制结构施工图,除应遵守《房屋建筑制图统一标准》中的基本规定外,还应遵守《建筑结构制图标准》(GB/T 50105—2010)。
1)图线
结构施工图中各种图线的用法如表10-1所示。
表10-1 结构施工图中各种图线的用法
    
续表10-1
    
2)比例
绘图时根据图样的用途,被绘物体的复杂程度,应选用表10-2中的常用比例,特殊情况下也可以选用可用比例。当构件的纵、横向断面尺寸相差悬殊时,可以在同一详图中的纵、横向选用不同的比例绘制。轴线尺寸与构件尺寸也可选用不同的比例绘制。
表10-2 比例
    
3)构件代号
在结构施工图中,构件的名称可用代号来表示。代号一般用汉语拼音的第一个大写字母表示,代号后应用阿拉伯数字标注该构件的型号或编号,也可为构件的顺序号。构件的顺序号采用不带角标的阿拉伯数字连续编排。常用的构件代号见表10-3。
表10-3 常用的构件代号
    
续表10-3
    
4)定位轴线
结构施工图上的定位轴线及编号应与建筑施工图一致。
5)尺寸标注
结构施工图上的尺寸应与建筑施工图相符合,但也不完全相同,结构施工图中所注尺寸是结构的实际尺寸,即一般不包括结构表面粉刷层或面层的厚度。在桁架结构的单线图中,其集合尺寸可直接注写在杆件的一侧,而不需要画尺寸线和尺寸界线。对称桁架可在左边注尺寸,右边注内力。
10.2 钢筋混凝土结构图
10.2.1 基本知识
混凝土是由水泥、黄砂、石子和水按一定的比例配合搅拌而成,把它灌入定形模板内,经过振捣密实和养护凝固后就形成坚硬如石的混凝土构件 。混凝土构件的抗压强度较高,但抗拉强度较低,一般仅为抗压强度的1/10~1/20,容易应受拉或受弯而断裂。为了提高构件的承载力,可在混凝土构件受拉区内配置一定数量的钢筋,这种由钢筋和混凝土两种材料构成的构件,称为钢筋混凝土构件 ,如图10-1所示。主要由钢筋混凝土构件组成的房屋结构,称为钢筋混凝土结构。钢筋混凝土结构是工业和民用建筑中应用得最广泛的一种承重结构。
    
图10-1 钢筋混凝土梁的构造示意图
1)钢筋混凝土结构和构件的种类
钢筋混凝土结构按不同的施工方法,可分为现浇整体式 、预制装配式和部分装配 、部分现浇的装配整体式 3类。
组成钢筋混凝土结构的构件有现浇钢筋混凝土构件和预制钢筋混凝土构件两种。钢筋混凝土构件还可以分为定型构件和非定型构件。定型构件一般是通用性较强的预制构件,它们的结构详图已编入标准图集或通用图集中,被选用的定型构件不必再画结构详图,只要在结构布置图中注明定型构件的型号,并说明所在图集的名称;非定型构件是自行设计的现浇构件或预制构件,必须绘制它们的结构详图。此外,有的预制构件在制作时通过张拉钢筋对混凝土预加一定的压力,以提高构件的抗拉和抗裂性能,这种构件称为预应力钢筋混凝土构件。
2)混凝土强度等级和钢筋等级
混凝土按其抗压强度的不同分为不同的等级,常用混凝土强度等级有C10、C15、C20、C25、C30、C35、C40等,数字愈大,其抗压强度也愈高。
混凝土结构中使用的钢筋按表面特征可分为光圆钢筋和带肋钢筋。用于钢筋混凝土结构及预应力混凝土结构中的普通钢筋可使用热轧钢筋,预应力钢筋可使用预应力钢绞线、钢丝,也可使用热处理钢筋。
普通钢筋混凝土结构及预应力混凝土结构中常用钢筋种类及其符号见表10-4所示。
表10-4 钢筋种类及符号
    
3)钢筋的名称和作用
按钢筋在构件中所起的作用可分为以下几种(如图10-1所示):
受力筋 ——构件中的主要受力钢筋,如梁、板中的受拉钢筋,柱中的受压钢筋。
箍筋 ——构件中承受剪力或扭力的钢筋,同时用来固定纵向钢筋的位置。
架立筋 ——它与梁内的受力筋、箍筋一起构成钢筋骨架,用以固定箍筋的位置。
分布筋 ——一般用于板内,与受力筋垂直,用以固定受力筋的位置,同时构成钢筋网,将力均匀分布给受力筋,并抵抗热胀冷缩引起的温度变形。
构造筋 ——因构件的构造要求或施工需要而配置的钢筋。
4)钢筋保护层和弯钩
为了防止钢筋的锈蚀、增强钢筋与混凝土之间的粘结力,钢筋的外边缘到构件表面应保持一定的厚度,称为钢筋保护层 。保护层的厚度在结构图中不必标注,但在施工时必须按表10-5的规定执行。
表10-5 钢筋混凝土构件的保护层
    
为了使钢筋和混凝土具有很好的粘结力,在光圆钢筋两端做成半圆弯钩或直弯钩;带肋钢筋与混凝土粘结力强,两端可不做弯钩。直筋和钢箍的弯钩形式如图10-2所示。
    
图10-2 常见的钢筋弯钩
5)钢筋混凝土构件的图示方法
钢筋混凝土构件的外观只能看到混凝土的表面和构件的外形,而构件内部钢筋的配置情况是看不见的。为了表达构件的配筋情况,可假想把混凝土看作为透明体,主要表示构件配筋情况的图样,称为配筋图,它在表示构件形状、尺寸的基础上,将构件内钢筋的种类、数量、形状、等级、直径、尺寸、间距等配置情况反映清楚。图示特点有:
(1)图示重点是钢筋及其配置,而不是构件的形状。为此,构件的可见轮廓线等以细实线绘制。
(2)假想把混凝土看作为透明体且不画材料符号,构件内的钢筋是可见的,钢筋用粗单线绘制。钢筋的断面以直径1mm的黑圆点表示。
(3)为了保证结构图的清晰,构件中各种钢筋,凡形状、等级、直径、长度不同的,都应进行编号,编号数字写在直径为5~6mm的细实线圆中,编号应绘制在引出线的端部,并对钢筋的尺寸进行标注。
钢筋的尺寸采用引出线方式标注,有两种用于不同情况的标注形式:
①标注钢筋的根数和直径,如梁、柱内的受力筋和梁内的架立筋:
    
②标注钢筋的直径和相邻钢筋的中心距,如梁、柱内的箍筋和板内的各种钢筋:
    
(4)普通钢筋的一般表示方法应符合表10-6的规定。
表10-6 钢筋的一般表示方法
    
对于外形比较复杂或设有预埋件的构件,还要画出表示构件外形和预埋件位置的图样,称为模板图 。
(5)配筋图上各类钢筋的交叉重叠很多,为了方便地区分它们,《建筑结构制图标准》对钢筋图上的钢筋画法应符合表10-7的规定。
表10-7 钢筋画法
    
续表10-7
    
钢筋在平面图中的配置应按图10-3所示的方法表示。当钢筋的位置不够时,可采用引出线标注。引出线标注钢筋的斜短划线应为中实线。当构件布置较简单时,结构平面布置图可与板配筋平面图合并绘制。
    
图10-3 钢筋在平面图中的表示方法
钢筋在立面、断面图中的配置,应按图10-4所示的方法表示。
    
图10-4 梁的配筋图
6)钢筋的简化表示方法
(1)对称的混凝土构件,可在同一图样中一半表示模板,另一半表示配筋,如图10-5所示。
    
图10-5 配筋简化方法一
(2)钢筋混凝土构件配筋较简单,可按下列规定绘制配筋平面图:
①独立基础在平面模板图左下角,绘出波浪线,绘出钢筋并标注钢筋的直径、间距等,如图10-6(a)所示。
②其他构件可在某一部位绘出波浪线,绘出钢筋并标注钢筋的直径、间距等,如图10-6(b)所示。
    
图10-6 配筋简化方法二
10.2.2 钢筋混凝土构件详图
1)钢筋混凝土梁结构详图
梁的结构详图一般包括立面图和断面图。立面图主要表示梁的轮廓、尺寸及钢筋的位置,钢筋可以全画,也可以只画一部分。如有弯筋,应标注弯起钢筋起弯位置。各类钢筋都应编号,以便与断面图及钢筋表对照。断面图主要表示梁断面形状、尺寸,箍筋的形式及钢筋的位置。断面图的剖切位置应在梁内钢筋数量有变化处。钢筋表附在图样的旁边,其内容主要是每一种钢筋的形状、长度尺寸、规格、数量,以便加工制作和做预算。
图10-7是L202(150mm×300mm)的结构详图。从梁的详图可以看出该梁为矩形断面的现浇梁,其断面尺寸为宽150mm,高300mm。楼板厚100mm,梁的两端支承在砖墙上。梁长3840mm,梁的下方配置了3条受力筋,其中在中间的②钢筋为弯起筋。从它们的标注A14可知,它们是直径为14mm的Ⅰ级钢筋。①号钢筋与②钢筋虽然直径、类别相同,但形状不同,尺寸不一,故应分别编号。从1-1断面可知梁的上方有2条架立筋③,直径是10mm的Ⅰ级钢筋。同时,也可知箍筋④的立面形状,它是直径为6mm的Ⅰ级钢筋,每隔200mm放置一个。
从钢筋详图,可以得知每种钢筋的编号、根数、直径、各段设计长度和总尺寸(下料长度)以及弯起角度,以便下料加工。按规定梁高小于800mm时弯起角度为45°,大于800mm时为60°。但近年来考虑抗震要求,多采用在支座处放置面筋和支边加密钢箍以代替弯起钢筋。
图10-7中,①号钢筋下面的数字3790,表示该钢筋从一端弯钩外沿到另一端弯钩外沿的设计长度,它等于梁的总长减去两端保护层的厚度。钢筋上面的l=3923,是该钢筋的下料长度,它等于钢筋的设计长度加上两端弯钩扳直后(2×6.25d)减去其延伸率(2×1.5d)所得的数值(d为钢筋直径大小)。②号钢筋的弯起角度不在图上标注,而用直角三角形两直角边的长度(250、250)表示,这个数值是指钢筋的外皮尺寸,而④号钢箍各段长度应指钢箍的里皮尺寸。此外,为了便于编造施工预算,统计用料,还要列出钢筋表,表内说明构件的名称、数量、钢筋的规格、钢筋简图、直径、长度、数量、总数量、总长和重量等,如表10-8所示。
    
图10-7 钢筋混凝土梁配筋图
表10-8 钢筋表
    
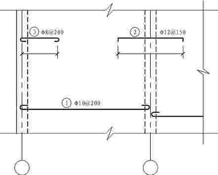
2)现浇钢筋混凝土板结构详图
现浇钢筋混凝土板的结构详图常用配筋平面图和断面图表示。配筋平面图可直接在平面图上绘制,每种规格的钢筋只需画一根并标注出其规格、间距及板长、板厚、板底结构标高等,断面图反映配筋形式。板的配筋有分离式和弯起式 两种,如果板的上下部钢筋分别单独配置称为分离式,如果支座附近的上部钢筋是由下部钢筋直接弯起的就称之为弯起式。图10-8所示钢筋混凝土现浇板的平面配筋图,板内配筋为分离式配筋。当板的配筋情况较复杂时,要结合采用剖面图来表示板的配筋情况,甚至可以将受力钢筋画在结构图的一边。
按《建筑结构制图标准》规定,水平方向钢筋的弯钩向下的,竖直方向的钢筋向右的,都是靠近板顶部配置的钢筋;水平方向钢筋的弯钩向上的,竖直方向的钢筋向左的,都是靠近板底部配置的钢筋。
3)现浇钢筋混凝土柱
柱是房屋的主要承重构件,其结构详图包括立面图和断面图,如果柱的外形变化复杂或有预埋件,则还应增画模板图,模板图上预埋件只画位置示意和编号,具体细部情况另绘详图。
图10-9所示为部分Z-3的现浇钢筋混凝土构造柱的立面图和断面图。柱的横断面边长均为370mm,主要受力筋为8根直径18mm的Ⅰ级钢筋;箍筋为直径8mm的Ⅰ级钢筋,间距为200mm;柱中间呈十字形的直径为8mm、间距为200mm的Ⅰ级钢筋,为附加腰筋,起增加柱的强度、提高柱的抗剪能力的作用。
    
图10-8 钢筋混凝土板平面配筋图
    
图10-9 钢筋混凝土柱配筋图
10.2.3 结构平面图
1)表达内容和图示方法
楼层结构平面(布置)图是假想沿每层楼板面上方水平剖切房屋并向下投影,用来表示每楼层的承重构件如楼板、梁、柱、墙的平面布置的全剖面图。
2)画法及要求
楼层剖面图所用的比例、定位轴线与建筑剖面图相同。
楼层结构平面布置图中的可见钢筋用粗实线表示,被剖切到的墙身、可见的钢筋混凝土板的轮廓线均用细实线表示,楼板下方不可见的墙身轮廓线用细虚线表示,剖切到的钢筋混凝土柱涂黑表示。
若过梁、砖墙中的圈梁位置与承重墙或框架梁的位置重合,用粗点画线表示其中心线的位置。
若楼板为预制楼板,其布置不必按实际投影分块画出,可简化为一条对角线(细实线)来表示楼板的布置范围,并沿对角线方向注写出预制板的块数和型号。预制板的标注方法,目前各地区有所不同。本教材列举一种标注法如下:
    
其中,板宽代号分别有4、5、6、8、9、12,代表板的名义宽度分别为400mm、500mm、600mm、800mm、900mm、1200mm,板的实际宽度为名义宽度减去20mm。
楼梯间的结构布置一般在楼层结构平面图中不予表示,而用较大比例单独画出楼梯结构详图。
结构平面图中需标注出轴线间尺寸及轴线总尺寸、各承重构件的平面位置及局部尺寸、楼层结构标高等,同时注明各种梁、板结构构件底面标高,作为安装或支撑的依据。梁、板的底面标高可以注写在构件代号后的括号内,也可以用文字做统一说明。
结构平面图中同时应附有关梁、板等其他构件连接的构造图、施工说明等。
由于预制板为早期使用的一种楼板,现在使用较少,而本项目均采用现浇板布置,故不再另外附预制板结构平面布置图。
10.2.4 钢筋混凝土梁、板、柱的平面整体表示方法
建筑结构施工图平面整体设计方法(简称平法 )对我国目前混凝土结构施工图的设计表示方法做了重大改革,被国家科委列为《“九五”国家级科技成果重点推广计划》项目(项目编号:97070209A),同时被建设部列为1996年科技成果重大推广项目(项目编号:96008)。
平法的表达形式,概括地讲,是把结构构件的尺寸和配筋等,按照平面整体表示方法制图规则,整体直接表达在各类构件的结构平面布置图上,再与标准构造图相配合,即构成一套完整的结构设计,改变了传统的将构件从结构平面布置图中索引出来,再逐个绘制配筋图的繁琐方法。
按平法设计绘制的施工图,一般是由各类结构构件的平法施工图和标准构造详图两大部分组成。必须根据具体工程设计,按照各类构件的平法制图规则,在按结构(标准)层绘制的平面布置图上直接表示各构件的尺寸、配筋和所选用的标准构造详图。出图时,宜按基础、柱、剪力墙、梁、板、楼梯及其他构件的顺序排列。
在平面布置图上表示各构件的尺寸和配筋方式,有平面注写方式、列表注写方式和截面注写方式3种。按平法设计绘制结构施工图时,应将所有柱、墙、梁构件进行编号。编号中含有类型代号和序号,其中,类型代号的主要作用是指明所选用的布置构造详图。柱、梁编号规则在后续章节作具体介绍。
本节以某联排别墅为例(10.2.5节读图实例),主要介绍柱、梁平面施工图制图规则。
1)柱平法施工图制图规则
柱平法施工图是在柱平面布置图上采用列表方式 或截面注写方式表达。在柱平法施工图中,应按规定注明各结构层的楼面标高、结构层标高及相应的结构层号。实例图10-11采用列表注写方式和截面注写方式的柱平法施工图,对相同的设计内容进行了表达。
(1)列表注写方式
列表注写方式是在柱平面布置图上(一般只采用适当比例绘制一张柱平面布置图,包括框架柱、框支柱、梁上柱和剪力墙上柱),分别在同一编号中选择一个(有时需要选择几个)截面标注几何参数代号,在柱表中注写柱号、柱各段起止标高、几何尺寸(含柱截面对轴线的偏心情况)与配筋具体数值,并配以各种柱截面形状及其箍筋类型图的方式来表达柱平法施工图,见实例图10-11所示。
柱表注写内容规定如下:
①注写柱编号
柱编号由类型代号和序号组成,应符合表10-9的规定。编号时,当柱的总高、分段截面尺寸和配筋均对应相同,仅分段截面与轴线的关系不同时,仍可将其编为同一柱号。
表10-9 柱编号
    
由实例图10-11可以看出,该框架有28类框架柱:KZ1至KZ28。
②注写各段柱的起止标高
自柱根部往上变截面位置或截面未变但配筋改变处为界分段注写。框架柱和框支柱的根部标高是指基础顶面标高。芯柱的根部标高是指根据结构实际需要而定的起始位置标高。梁上柱的根部标高是指梁顶面标高。剪力墙上柱的根部标高分两种:当柱纵筋锚固在墙顶部时,其根部标高为墙顶面标高;当柱与剪力墙重叠时,其根部标高为墙顶面往下一层的结构层楼面标高。
在实例图10-11中,如KZ8、KZ9等框架柱从基础顶到屋面截面及配筋情况均相同,因此均只标注一段。如KZ2由于纵筋和箍筋的规格发生改变,所以在表格中分为“基础~4.450m”及“4.450m~7.350m”两段注写。
③注写截面尺寸
对于矩形柱,注写截面尺寸b×h及与轴线关系的几何参数代号b1、b2和h1、h2的具体数值,须对应各段分别注写。其中b=b1+b2,h=h1+h2。当截面的某一边收缩变化至轴线重合或偏到轴线的另一侧时,b1、b2、h1、h2中的某项为零或为负值。
④注写柱纵筋
当柱纵筋直径相同、各边根数也相同时(包括矩形、圆柱和芯柱),将纵筋注写在“全部纵筋”一栏中。除此之外,柱纵筋分角筋、截面b中边配筋和h边中部配筋3项分别注写(对于采用对称配筋的矩形截面柱,可仅注写一侧中部筋,对称边省略不写)。当为圆柱时,表中角筋注写圆柱的全部纵筋。
⑤注写箍筋类型和箍筋肢数
具体工程所设计的各种箍筋类型图以及箍筋复合的具体方式,须画在表的上部或图中的适当位置,在其上标注与表中相对应的b、h并编上其类型号,在箍筋类型栏内注写箍筋类型号,如图10-11中箍筋类型C8@100所示。
⑥注写柱箍筋(包括钢筋)
柱箍筋的注写包括钢筋级别、直径与间距。当为抗震设计时,用“/”区分柱端箍筋加密区与柱身非加密区长度范围内箍筋的不同间距。施工人员须根据标准构造详图的规定,在规定的几种长度值中取其最大值作为加密区长度。当箍筋沿柱全高为一种间距时,则不使用“/”线。当圆柱采用螺旋箍筋时,需在钢筋前加“L”。
图10-11中,KZ2箍筋为C8,加密区间距100,非加密区间距200;KZ2在基础顶~4.450m处加密区间距100,非加密区间距200,而4.450~7.350m,箍筋间距全长均为100,所以在表中分段注写。
(2)截面注写方式
截面注写方式是在分标准层绘制的柱平面布置图的柱截面上,分别在同一编号的柱中选择一个截面,以直接注写截面尺寸和配件具体数值的方式来表达柱平法施工图。图10-11即为采用截面注写方式绘制的柱平法施工图。
截面注写内容规定与列表注写规定相近。其具体做法是对所有柱截面按平面注写方式规定进行编号。从相同编号的柱中选择一个截面,按另一种比例原位放大绘制柱截面配筋图,并在各配筋图上继其编号后再注写截面尺寸b×h、角筋或全部纵筋(当纵筋采用一种直径且能够图示清楚时)、箍筋的具体数值以及在柱截面图标注柱截面与轴线关系b1、b2和h1、h2的具体数值。
当纵筋采用两种注写方式时,可以根据具体情况,在一个柱平面布置图上用小括号或尖括号来区分和表达不同标注层的注写数值。
2)梁平法施工图制图规则
梁平法施工图是在梁的平面布置图上采用平面注写方式 或截面注写方式表达。
梁平面布置图,应分别按梁的不同结构层(标准层),将全部梁及与其相关联的柱、墙、板一起采用适当比例绘制。
(1)平面注写方式
平面注写方式是在梁平面布置图上,分别在不同编号的梁中各选一根梁,在其上注写截面尺寸和配筋具体数值的方式来表达梁的平法施工图。图10-12即是采用平面注写方式表达的梁平法施工图。
平面注写包括集中标注与原位标注。集中标注表达梁的通用数值,原位标注表达梁的特殊数值。当集中标注中的某项数值不适用于梁的某部位时,则将该项数值原位标注,施工时原位标注取值优先。
①梁集中标注
梁集中标注的内容有5项必注值及1项选注值,集中标注可以从梁的任意一跨引出,规定如下:
A.梁编号(必注值)
梁编号由梁类型代号、序号、跨数及有无悬挑代号组成,应符合表10-10的规定。其中(××A)为一端有悬挑,(××B)为两端有悬挑,悬挑不计入跨数。如图10-12中KL13 (8B)表示13号框架梁,8跨,两端有悬挑;WKL1(2)表示1号屋面框架梁,2跨。
表10-10 梁编号
    
B.梁截面尺寸(必注值)
该项为必注值,当为等截面梁时,用b×h表示;当为加腋梁时,用b×hYc1×c2表示,其中c1为腋长,c2为腋高;当有悬挑梁且根部和端部高度不同时,用斜线分隔根部与端部的高度值,即b×h1/h2。如图10-12中:KL13和KL19截面尺寸分别为240mm×400mm、200mm×400mm。
C.梁箍筋(必注值)
包括钢筋级别、直径、加密区与非加密区间距及肢数。箍筋加密区与非加密区的不同间距与肢数常用斜线“/”分隔;当梁箍筋为同一种间距及肢数时,则不需要用斜线,当加密区与非加密区的箍筋肢数相同时,则将肢数注写一次,箍筋肢数应写在括号内。
如图10-12中:KL13箍筋为C10@100/200(2)表示箍筋为Ⅲ级钢筋,直径C10,加密区间间距为100,非加密区间间距为200,均为两肢箍。
D.梁上部通长筋或架立筋配置(通长钢筋可为相同或不同直径采用搭接连接、机械连接或对焊连接的钢筋。为必注值)
所注规格与根数应根据结构受力要求及箍筋肢数等构造要求而定,当同纵筋中既有通长钢筋又有架立筋时,应用加号“+”将通长钢筋和架立筋相连。注写时须将角部纵筋写在加号的前面,架立筋写在加号的括号内,以示不同直径及其通长筋的区别。当全部采用架立筋时,则将其写入括号内。当梁的上部纵筋和下部纵筋为全跨相同,且多数跨配筋相同时,此项可加注下部纵筋的配筋值,用“;”将上部与下部纵筋的配筋值分隔开来,少数跨不同者进行原位标注。
如图10-12中,KL19上部通长筋2C16,下部通长筋2C16。
E.梁侧面纵向构造钢筋或受扭钢筋配置(必注值)
当梁腹板高度大于450mm时,须配置纵向构造钢筋,所注写规格与根数应符合规定。此项注写值以大写字母G打头,接续注写设置在梁两个侧面的总筋配筋值,且对称配置。
当侧面配置受扭钢筋时,此项注写值以大写字母N打头,接续注写配置在梁两个侧面的总筋配筋值,且对称配置。受扭纵向钢筋应满足梁侧面纵向构造钢筋的间距要求,且不再重复配置纵向构造钢筋。
如图10-12中,KL10在侧面配置2C14的受扭钢筋,上部通长筋3C20,下部通长筋2C16。
F.梁顶面标高高差(选注值)
梁顶面标高高差指相对于结构层楼面标高的高差值,有高差时将其写入括号内,无高差时不注。梁顶面标高高于所在结构层楼面标高时,其标高高差为正值,反之为负值。例如,某结构层楼面标高为44.950m和48.250m,当某梁的梁顶面标高高差注写为(-0.050)时,即表明该梁顶面标高分别相对于44.950m和48.250m低0.05m。
②梁原位标注
梁原位标注内容规定如下:
A.梁支座上部纵筋
该部位含通长筋在内的所有纵筋。当上部钢筋多于一排时,用“/”将各排纵筋自上而下分开;当同排纵筋有两种直径时,用加号“+”将两种直径的纵筋相连,注写时将角部纵筋写在前面;当梁中间支座两边的上部纵筋不同时,须在支座两边分别标注;当梁中间支座两边的上部纵筋相同时,可只标注一边,另一边省去不注。
B.梁下部纵筋
当下部纵筋多于一排时,用“/”将各排纵筋自上而下分开;当同排纵筋有两种直径时,用加号“+”将两种直径的纵筋相连,注写时将角部纵筋写在前面。
当梁下部纵筋不全部伸入支座时,将梁支座下部纵筋减少的数量写在括号中。
C.梁附加箍筋或吊筋及其他
将其直接画在平面图中的主梁上,用线引注总配筋值。当多数附加筋或吊筋相同时,可在梁平法施工图上统一注明;少数与统一注明值不同时,在原位引出。如图10-12中,沿?轴线附加箍筋,直接绘在了主梁上,C8@100(2)。
(2)截面注写方式
截面注写方式是在分标准层绘制的梁平面布置图上,分别在不同编号的梁中选择一根梁用剖面号引出配筋图,并在其上注写截面尺寸和配筋具体数值的方式来表达梁平法施工图。
对所有梁按平面注写方式进行编号,从相同编号的梁中选择一根梁,先将“单边截面号”画在该梁上,再将截面配筋详图画在本图或其他图上。当某梁的顶面标高与结构层的楼面标高不同时,尚应继其梁编号后注写梁顶面标高高差。
在截面配筋详图上注写截面尺寸、上部筋、下部筋、侧面构造筋或受扭筋、箍筋的具体数值时,其表达方式与平面注写方式相同。截面注写方式既可以单独使用,也可以与平面注写方式结合使用。
3)有梁盖板平法施工图制图规则
有梁盖板平法施工图,系在楼面板和屋面板布置图上,采用平面注写的表达方式。
板平面注写主要包括板块集中标注 和板支座原位标注 。
为方便设计表达和施工识图,规定结构平面的坐标方向为:当两向柱网正交布置时,图面从左至右为X向,从下至上为Y向;当轴网转折时,局部坐标方向顺轴网转折角度做相应转折;当轴网向心布置时,切向为X向,径向为Y向。此外,对于平面比较复杂的区域,如轴网转折交界区域、向心布置的核心区域等,其平面坐标方向应由设计者另行规定并在图上明确表示。
(1)板块集中标注
梁集中标注的内容为:板块编号,板厚,贯通纵筋,以及当板面标高不同时的标高高差。
板块编号按表10-11的规定。
表10-11 板块编号
    
注:延伸悬挑板的上部受力筋应与相邻内板的上部纵筋连通配置。
板厚注写为h=×××(为垂直于板面的厚度)。当悬挑板端部改变截面厚度时,用斜线分隔根部与端部的高度,注写为h=×××/×××。当设计已在图中统一注明厚度时,此项可不注。
贯通钢筋按板块下部和上部分别注写(当板块上部不设贯通钢筋时则不注),并以B代表下部,以T代表上部,B&T代表下部与上部;X向贯通钢筋以X打头,Y向贯通钢筋以Y打头,两向贯通纵筋配置相同时则以X&Y打头。当为单向板时,另一向贯通的分布筋可不必标注,而在图中统一说明。当在某些板内(例如延伸悬挑板YXB,或者纯悬挑板XB的下部)配置有构造筋时,则X向以Xc、Y向以Yc打头注写。当Y向采用放射配筋时(切向为X向,径向为Y向),设计者应注明配筋间距度量位置。当板悬挑部分与跨内板有高差且低于跨内板时,宜将悬挑部分设计为纯悬挑板XB。
板面标高高差 ,系指相当于结构层楼面标高的高差,应将其注写在括号内,且有高差则注,无高差则不注。
【例10-1】 设有一楼面板注写为:LB5 h=110 B:XA12@120;YA10@110
系表示5号楼面板,板厚110mm,板下部配置的贯通筋X向为A12@120,Y向为A10@110;板上部未配置贯通纵筋。
【例10-2】 设有一延伸悬挑板注写为:YXB2 h=150/100 B:Xc&YcA8@200
系表示2号延伸悬挑板,板根部厚150mm,端部厚100mm,板下部配置构造钢筋双向均为A8@200(上部受力钢筋见板支座原位标注)。
(2)板块支座原位标注
板支座原位标注内容为:板支座上部非贯通纵筋和纯悬挑板上部受力钢筋。
板支座原位标注的钢筋,应在配置相同跨的第一跨表达(当在梁悬挑部分单独配置时则在原位表达)。在配置相同跨的第一跨(或梁悬挑部位),垂直于板支座(梁或墙)绘制一段适宜长度的中粗实线(当该筋通长设置在悬挑板或短跨板上部时,实线段应画至对边或者贯通短跨),以该线段代表支座上部非贯通筋,并在线段上方注写钢筋编号(如①、②等)、配筋值、横向连续布置跨数(注写在括号内,且当为一跨时可不注)以及是否横向布置到梁的悬挑端。例如,(XX)为横向布置跨数,(XXA)为横向布置跨数及一端悬挑部位,(XXB)为横向布置跨数及两端悬挑部位。
板支座上部非贯通筋自支座中线向跨内的延伸长度,注写在线段的下方位置。
当中间支座上部非贯通筋向支座两侧对称延伸时,可仅在支座一侧线段下方标注延伸长度,另一侧不注。当向支座两侧非对称延伸时,应分别在支座两侧线段下方标注延伸长度。
在板平面布置图中,不同部位的板支座上部非贯通纵筋及纯悬挑板上部受力筋,可仅在一个部位注写,对其他相同者仅需要在代表钢筋的线段上注写编号及横向连续布置的跨数(当为一跨时可不注)即可。
【例10-3】 在板平面布置图某部位,横跨支承梁绘制的对称线段上注有⑦A12@100 (5A)和1500。
表示支座上部⑦号非贯通纵筋为A12@100,从该跨起沿支承梁连续布置5跨加梁一端的悬挑端,该筋自支座中线向两侧跨内的延伸长度均为1500mm。在同一板平面内布置图的另一部位横跨梁支座绘制的对称线段上注有⑦(2)者,系表示该筋同⑦号纵筋,沿支承梁连续布置两跨,且无悬挑端布置。
10.2.5 读图实例
以某联排别墅为例,本节给出该联排别墅框架柱平法施工图。
【例10-4】 识读柱平面布置图(图10-10)、柱截面图(图10-11)。
根据平法的表示方法,单独绘制了柱平面布置图,在柱平面布置图中标出各框架柱的位置、编号和截面大小。其中各柱的具体配筋情况则在柱截面图中,以图表结合的方式详细绘出。具体读图,以柱平法施工图制图规则为基准。本案例为框架结构,在图中剖切到的钢筋混凝土柱用涂黑表示。图10-10中只表示柱的平面布置,首先通过柱平面图了解各柱的编号、数量及截面形状和尺寸。如KZ-1为L形截面,尺寸为500×200+500×200叠合成L形。然后,通过截面图了解各柱的起止标高位置以及配筋情况。由图可知KL-1起止标高位置为“基础~4.450m”处,内部配筋,纵筋为12C16,箍筋为C8@100。同样,可以分别读出图中每根柱的形状、大小配筋情况,最终了解整个结构中柱的布置情况。
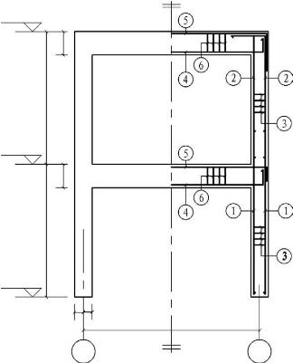
【例10-5】 识读梁平法施工图,梁、板横向配筋图(图10-12)和梁、板纵向配筋图(图10-13)
在图10-12中主要表示了二层(标高4.450m)梁的横向配筋情况,其读图,以梁平法施工图制图规则为基准。在图中,可见的钢筋用粗实线表示,被剖切到的墙身、可见的钢筋混凝土楼板的轮廓线均用细实线表示。可见的钢筋混凝土梁、柱轮廓线用中实线表示,不可见的钢筋混凝土梁用细虚线表示。楼板下部不可见的墙身轮廓线用细虚线表示,被剖切到的钢筋混凝土柱用涂黑表示。首先了解整个平面图中梁的整体布置情况以及梁的编号、数量,再根据梁平法施工图制图规则对每根梁进行识读。如:沿?轴线有KL10,沿?轴线有KL11和KL12,沿?轴线有KL13等。由于左右为对称布置,有些左侧已经详细标注的右侧只标注了编号和跨数,如KL12(1A)在右侧只标注了名称和跨数。以沿?轴线的KL10为例进行详细识读。图中标出KL10(8B)200×400,C8@100/200(2),3C20;2C16,表示该梁为框架梁,编号为10,有8跨且两端悬挑,截面尺寸为200mm×400mm,梁箍筋配置为Ⅲ级钢筋,加密区中心距为200mm,非加密区中心距为100mm,均为两肢箍,梁内通长纵筋上部为3根直径为20mm的Ⅲ级钢筋,下部为2根直径为16mm的Ⅲ级钢筋。同法可以识读其余梁的编号、截面尺寸以及内部配筋等相关标注。
图10-13中主要表示了二层(标高4.450m)梁、板的纵向配筋情况。由于梁内纵向配筋方法和梁内横向配筋方法相同,这里不再复述。下面主要对板内配筋进行识读。该联排别墅均采用现浇板,由于左右对称,梁内纵向配筋只在左侧表示,板内配筋只在右侧画出。板内配筋采用直接在图上画出并进行标注的方法,由图中标注可知,板内配置钢筋大部分为相同的C8@100的上下部双向钢筋网,板厚为120mm。图中未注明钢筋为C8@200,未注明板厚为100mm,在图上有说明。
    
    
    
    
10.3 基础图
基础 是房屋在地面以下的部分,它承受房屋全部荷载,并将其传递给地基(房屋下的土层)。
    
图10-14 基础组成示意图
根据上部承重结构形式的不同及地基承载力的强弱,房屋的基础形式通常有以下几种:柱下独立基础、墙(或柱)下条形基础、柱下十字交叉基础、阀形基础及箱形基础等。根据基础所采用的材料不同,基础又可分为砖石基础、混凝土基础及钢筋混凝土基础等。
现以条形基础为例(图10-14),介绍基础的一些知识。房屋建造前,首先根据定位轴线在施工现场挖一长条形的土坑,称基坑。基础底下的土层或岩石层称为地基;基础与地基之间设有垫层;基础墙呈台阶形放宽,俗称大放脚;基础墙的上部设有防潮层;防潮层的上面是房屋的墙体。
基础图就是要表达建筑物室内地面以下基础部分的平面布置和详细构造的图样,它是施工放线、开挖基坑及施工基础的依据。基础图通常包括基础平面图和基础详图。基础平面图主要表达基础的平面布置,一般只画出基础墙、构造柱、承重柱和断面以下基础底面的轮廓线。至于基础的细部投影(如基础及基础梁的基本形状、材料和构造等)将反映在基础详图中。如图10-15为某联排别墅的基础平面图,图10-16为基础详图。
10.3.1 基础平面图
1)图示方法
基础平面图是假想用一水平面沿地面将房屋剖开,移去上面部分和周围土层,向下投影所得的全剖面图。
2)画法特点及要求
(1)图线
剖切到的墙画中粗实线(0.7b),可见的基础轮廓画中粗实线(0.7b)或者中实线(0.5b),可见的基础梁画中实线(0.5b)。
(2)比例
基础平面图的比例一般与建筑平面图的比例相同。
(3)定位轴线
基础平面图上的定位轴线及编号应与建筑平面图一致,以便对照阅读。
(4)基础梁、柱
基础梁、柱用代号表示,剖切的钢筋混凝土柱涂黑。
(5)剖切符号
凡尺寸和构造不同的条形基础都需加画断面图,基础平面图上剖切符号要依次编号。
(6)尺寸标注
基础平面图上需标出定位轴线间的尺寸以及条形基础底面和独立基础底面的尺寸。整板基础的底面尺寸是标注在基础垫层示意图上的。
10.3.2 基础详图
基础平面图仅表示基础的平面布置,而基础各部分的形状、大小、材料、构造及埋置深度需要画详图来表示。基础详图是用来详尽表示基础的截面形状、尺寸、材料和做法的图样。根据基础平面布置图的不同编号,分别绘制各基础详图。由于各条形基础、各独立基础的断面形式及配筋形式是类似的,因此一般只需画出一个通用的断面图,再附上一个表加以辅助说明即可。
条形基础详图通常采用垂直断面图表示。独立基础详图通常用垂直断面图和平面图表示。平面图主要表示基础的平面形状,垂直断面图表示了基础断面形式及基础底板内的配筋。在平面图中,为了明显地表示基础底板内双向网状配筋情况,可在平面图中一角用局部剖面表示,见图10-16所示。
10.3.3 读图实例
基础平面图的绘图比例一般应与建筑平面图的比例相同。基础平面图上的定位轴线及编号也应与建筑平面图一致。建筑平面图上剖切到的墙体边线画成粗实线,基础梁柱用代号表示,剖切到的钢筋混凝土柱涂黑,基础轮廓线用中实线或者中粗实线表示,基础下面不可见的小洞与其过梁分别用细、粗虚线表示。
基础平面图上应注出房屋轴线间的开间、进深与总长、总宽尺寸等。凡构造与尺寸不同的基础都要加画断面图,剖切符号要依次标注。
在图10-15基础平面图中可见该联排别墅大部分采用柱下独立基础的形式,基础之间有基础梁连接,沿⑧轴线和?轴线局部有条形基础。每个独立基础均进行了编号J-1~J-10,在平面图中只标出了每个独立基础的外观尺寸,具体内部配筋见基础详图。在基础平面图中,基础梁的表示采用平法的集中注法,其表达方法同梁的平法施工图制图规则。在图中由于左右对称,只在右侧标注。以沿?轴线的基础梁为例进行详细识读。图中标出JCL1 (8)240×400,C8@100/200(2),3C16;3C16,表示该梁为基础梁,编号为1,有8跨,截面尺寸为240mm×400mm,梁箍筋配置为Ⅲ级钢筋,加密区中心距为200mm,非加密区中心距为100mm,均为两肢箍,梁内通长纵筋上下部均为3根Ⅲ级钢筋,直径为16mm。其余的识读方法相同。
具体独立基础内配筋见基础详图及独立柱基础参数表。
    
表10-12 独立柱基础参数表
    
    独立柱基础常应用于框架结构的基础。图10-16左图是一个独立基础的详图,它由平面图和剖面图组成。由图所示可知,独立柱基础下面有垫层,基础与上面的柱连为一体。本图所示的垫层是厚度为100mm的C15混凝土,基础为C25混凝土,因在施工总说明中说明,故未在图中注出。由于该详图为通用详图,平面尺寸标注为A×B的矩形,未标明具体大小,结合独立基础参数表可得出详细大小尺寸。基础形状为四棱柱和四棱台的组合体,其底部尺寸为A×B,上部尺寸为(a+100)×(b+100),高度为h1+h2。基础底部配有 
双向钢筋网。柱的断面尺寸为a×b,具体数值见独立基础参数表。基础内插筋同柱内纵筋,标高±0.000以下,基础内箍筋同柱内箍筋@100加密表示。由于上部有异形柱,故基础内因为构造要求增加钢筋。图10-16左图中,由于上部为L形柱,故增加了3C10的构造筋以及2C8的箍筋。
图10-16是条形基础详图,条形基础包括垫层和基础墙两部分,垫层采用C15混凝土,基础采用C25混凝土,同独立基础。基础墙采用强度等级为MU15的240mm×115mm× 53mm蒸压粉煤灰砖,M10水泥砂浆砌筑。由于在施工总说明中注出,故未在图中注出。基础内配置C8@200和C8@200(C15@500)钢筋网。基础高度为300(500)mm。基础详图按实际形状、尺寸绘制,画出材料图例,并表示出基础上的墙体、防潮层、室内外地坪位置,女儿墙、室内地坪以下的墙体。
    
图10-16 基础详图
上一篇:最优化教学——巴班斯基
下一篇:要尊重人才





.jpg)
.jpg)
